Ремонт двухкомнатной квартиры: идеи дизайна и фото

Двухкомнатные квартиры  — самое, пожалуй, распространенное жилье в нашей стране, ведь некоторое время они составляли примерно 60% от общего количества квартир во всех строящихся домах. Если дома старой постройки, то и площадь будет примерно одинаковой — от 40 до 45 квадратов для «хрущевок» и около 50 у «сталлинок». Но количество проживающих бывает очень разным: от одного человека до четырех-пяти. Естественно, потребности и требования при обустройстве различные. Разрабатывая дизайн двухкомнатной квартиры это необходимо учитывать. 

Совместная и раздельная планировка

Содержание статьи

  • 1 Совместная и раздельная планировка
  • 2 Стили в дизайне двухкомнатной квартиры: один или нет?
    • 2.1 Ремонт квартиры в современном стиле
    • 2.2 Романтическая двухкомнатная квартира
    • 2.3 Дизайн двухкомнатной квартиры в типовом доме П-44
      • 2.3.1 Общее описание квартиры
      • 2.3.2 Фото интерьеров

Совместная планировка двухкомнатной квартиры, это когда во вторую комнату можно попасть только через первую. Для одного человека это удобно: первая комната может использоваться как гостиная, а вторая — как спальня. Точно такое же распределение «ролей» предпочитают пары. При таком составе семьи совмещенные комнаты — это удобно.

Варианты планировки двухкомнатных «хрущевок» домов разных серий

Если квартира находится в доме «хрущевской» постройки, то кухня в ней очень маленькая. Для холостяка это, в общем, не проблема, а вот для пары маленькая площадь неудобна. Самый распространенный в этом случае вариант ремонта — объединение кухни и первой комнаты. В некоторых вариантах планировки это возможно. Получаемая тогда совмещенная площадь по-новому делится между двумя помещениями. Иногда к зоне кухни отводится только площадь, которая получилась после удаления стены и уже этого бывает достаточно. А имеющаяся площадь бывшей комнаты делится на две зоны — столовую и гостиную.

Варианты планировки двухкомнатных «хрущевок» домов разных серий

Семье с детьми при такой планировке неудобно. Детям обычно отводят дальнюю комнату — они раньше ложатся спать. При этом родителям в проходной комнате неудобно. Мало того, что в ней совмещаются гостиная и спальня, так еще ни о какой приватности речь не идет: дети в любой момент могут решить сходить в туалет или на кухню. В этом случае основная идея ремонта — разделить комнаты за счет переноса или установки новых перегородок, а также смещения дверей.

Одна из самых нелюбимых двухкомнатных квартир — «трамвайчик» легко трансформируется, превращаясь в жилье с раздельной планировкой и кладовкой или гардеробной

Часто при этом идут на уменьшение полезной площади. Но иногда, наоборот, жилая площадь становится больше. Такое бывает в «хрущевках» с большим количеством кладовок: их превращают в жилую площадь, а все хранящиеся там вещи распределяют по шкафам или размещают в гардеробной.

При достаточно большой площади, двухкомнатную квартиру с проходными комнатами можно превратить в трехкомнатную. При этом проходная комната используется как гостиная, а дальняя разделяется на две небольшие спальни.

Как из двухкомнатной квартиры сделать трехкомнатную

Раздельная планировка двухкомнатной квартиры — это когда в комнаты можно попасть из коридора. В целом такие квартиры более удобны для семей: есть два изолированных помещения. Довольны обычно и дети и родители.

Для пар или одиночек часто и при таком расположении есть возможность объединить кухню и гостиную и за счет этого сделать квартиру более современной и стильной.

Вариант ремонта двухкомнатной квартиры — объединение гостиной и кухни

Есть еще популярный способ увеличения жилой площади: объединение комнаты с лоджией или балконом. В этом случае необходимо тщательное утепление бывшего балкона и его качественное остекление. При этом убирают оконную и дверную раму, а часть стены оставляют, используя ее как тумбу или прилавок. ее можно убрать, но только ту часть, которая была подоконником, так как она не несет нагрузки. А чтобы оставшийся проем не смотрелся как нечто чужеродное, его можно оформить в виде арки, скруглив углы.

Стили в дизайне двухкомнатной квартиры: один или нет?

Наиболее логичным будет оформление всей квартиры в  одном стиле. Это совсем не означает, что должна быть одна цветовая гамма. Вовсе нет. И один стиль — не значит однообразие. В рамках одной стилистики есть очень широкие возможности и море вариаций.

Ремонт квартиры в современном стиле

Например, смотрите на фото дизайн двухкомнатной квартиры в современном стиле. Направление в создании интерьеров — использование графических изображений.

Прихожая и холл в двухкомнатной квартире

Так как прихожая имеет небольшие размеры, вся мебель сосредоточена на одной стене. У противоположной стены, возле двери есть только узкая обувница с мягким сиденьем. Зона прихожей от коридора отделяется фигурным выступом на потолке. Меняется и графика в оформлении стен, хотя цвета остаются теми же.

Вид на холл

Как видите, цветовая гамма в этих помещениях сохраняется. Оно и понятно: между ими нет четкой грани, хоть и форму буквы «Г».

Рабочее место организовано на месте бывшей кладовки

В кухне сохраняются графические мотивы, присутствовавшие в отделке стен прихожей, но цветовое оформление уже совсем другое, хоть стиль неизменен. Смотрится ничуть не скучно, общая идея прослеживается.

Мотивы, которые были на стенах в прихожей есть и на кухне, но они перенесены на шторы и в совсем другом цвете

Помещение кухни и не особо просторное, но удалось вписать кухонный гарнитур в виде буквы «П». Выступающая его часть используется как барная стойка. Такое решение позволяет увеличить  рабочую площадь, а также расширяет функциональные возможности: на этом месте можно перекусить, не накрывая на стол.

Стиль остался тот же: современный, но подход другой

Разграничение на кухонную и столовую зоны подчеркивается оформлением стен, организацией потолка и подсветкой. Все они подчеркивают наличие двух зон разного назначения, хотя четких границ нет.

В ванной сохраняется бежево-коричневая гамма цветов, но снова меняется характер интерьера. Обратите внимание на многоступенчатую подсветку и оформление потолка — интересное дизайнерское решение  зрительно приподнимает потолок. Также интересны и функциональны выступы по периметру. Это усложняет кладку плитки, но в разы повышает функциональность: нет необходимости в навесных полках: все отлично поместится на выступах.

Ванная в бежевых тонах с коричневыми акцентами

В оформлении спальни появляется розовый цвет и графические изображения птиц на ветках. Стиль все тот же, но никто не скажет, что квартира выглядит монотонной.

Спальня — графика присутствует, но уже в совсем другой интерпретации

Оформление детской комнаты для девочки вообще по цветовому оформлению выбивается из общего ряда, но при этом имеет общие черты.

Детская комната

Как видите, единство стиля — не означает одинаковый дизайн. Во всех помещениях двухкомнатной квартиры есть своя нотка, но и что-то от общей идеи присутствует. Вот и вам, при разработке своего проекта необходимо прежде всего определиться со стилем, в котором вы видите свое жилье. Потом найти идею или некоторые элементы, которые будут объединять все интерьеры в единое целое.

Романтическая двухкомнатная квартира

Это фото ремонта малогабаритной  2 комнатной квартиры. В ней проживает один человек, потому было принято решение снести большую часть стен. Прихожая в квартире очень маленькая: буквально шкаф с одной стороны и небольшая тумба с зеркалом с другой. Стены почти белые, яркое освещение.

Оформление маленькой прихожей

Вход в кухню сразу из прихожей. Чтобы техника не слишком выделялась на фоне светлых стен, она тоже вся сделана белой, как и столешница и стулья. Темные дверки шкафов повторяются в темной столешнице обеденного стола.

Кухня оформлена тоже в романтическом стиле — кухонный фартук с фотопечатью придает намекает о пристрастиях хозяина к путешествиям

Оформление получилось легким и воздушным. В небольшом помещении нет ощущения «давления».

Вид на интерьер кухни с другого ракурса

В этом интерьере обыгрываются нестандартные формы: полукруглая мебель и перегородки. Так в гостиной доминирует большой диван, имеющий форму дуги, возле него — овальный столик, плавные линии присутствуют и на многоуровневом потолке.

Гостиная. Большой полукруглый диван является центром интерьера. Он занимает центр композиции

Непременный атрибут современного интерьера — телевизор — находится в центре композиции напротив дивана.

Телевизор в современной горке

Необычность этого интерьера в том, что спальня практически составляет единое целое с гостиной. Она отделена только полукруглой перегородкой-колонной. Вы можете видеть кровать, которая частично просматривается из с дивана гостиной.

Спальня в этой двухкомнатной квартире почти не изолирована — ее отделяет от гостиной только полукруглая перегородка

Красиво оформлен совмещенный санузел. Нежное сочетание цветов, плавные линии сантехники, достаточное, но не резкое освещение. Все это создает красивый интерьер.

Оформление ванной в бело-розовом цвете

Дизайн этой квартиры уж никак не назовешь однотонным или скучным. Все помещения оформлены в разных стилях. Их объединяет доминирующий белый цвет, а также плавные, округлые линии в интерьере.

Дизайн двухкомнатной квартиры в типовом доме П-44

Эта серия домов строится уже несколько десятилетий. Продолжают их возводить и сейчас, есть причем несколько модификаций. Тем не менее общий принцип построения остается стандартным: все квартиры с раздельной планировкой. От более ранней застройки их отличают большие размеры всех помещений, включая кухню.

Общее описание квартиры

Исходный пан двухкомнатной квартиры в доме серии П-44

Эта 2-х комнатная квартира имеет общую площадь 55 кв. м. К недостаткам можно отнести совмещенный санузел и неудачно расположенную дверь в меньшую комнату: она находится прямо напротив входной что доставляет неудобства.

 

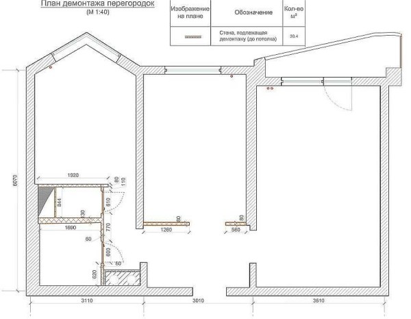
План переделки двухкомнатной квартиры — убираем ненужные перегородки

В данном случае квартира предназначена для семьи с детьми. Владельцы решили, что их больше устроит совместный санузел. Также решено было убрать перегородку, отделяющую от прихожей детскую и на ее месте поставить вместительный шкаф. Таким образом немного сэкономлено место, а функциональность не пострадала.

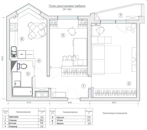
План расстановки мебели

Под большой шкаф занята и часть площади, которая находится справа от двери в спальню, которая будет также использоваться как гостиная.

Фото интерьеров

В прихожей площадью чуть меньше 6 кв. м. установлен шкаф. На второй стене прибита вешалка и под ней тумба. Над вешалкой находится квартирный электрощит, чтобы он не обращал на себя внимание, корпус покрашен краской такого же цвета, как и элементы мебели. Его верхнюю поверхность можно использовать для хранения мелочей.

Фото интерьера прихожей

Гостиная и, по совместительству, спальня родителей оформлена в том же цвете — сером с бирюзовой отделкой. Это не случайно: такой прием позволяет не разграничивать пространство, несмотря на наличие перегородок.

Фото оформления гостиной 

В дальнем конце комнаты организовано рабочее место. Оно отделено полкой-стеллажом небольшой высоты, благодаря чему пространство не дробится, но зонирование достаточно явное.

Другой ракурс на спальню-гостиную

Справа от двери установлен большой шкаф под потолок. Частично он имеет открытые полки, частично — закрытые. В этом месте можно сделать узкую гардеробную или встроенный шкаф-купе. Гардеробная будет иметь ограниченный функционал — ширина её, при данной планировке, всего 80 см, чего недостаточно, но все равно её реально обустроить. Пока же было решено поставить корпусную мебель — для экономии средств.

Детская имеет не очень большую площадь, потому было принято решение использовать подоконник как стол. Для более компактного размещения поставлена двухъярусная кровать. Внизу выдвижные ящики, которые можно использовать для хранения игрушек и постельных принадлежностей.

Оформление детской — лаконично и функционально

 

Кухня-столовая имеет относительно небольшую площадь — чуть больше 9 кв. м. Чтобы визуально смотрелась она просторной, стены выкрашены в белый цвет. Такого же цвета выбрана мебель. Ярким пятном на белом фоне выделяется кухонный фартук — зеленого цвета. Того же зеленого оттенка мягкие чехлы на стулья.

Кухня в двухкомнатной квартире

Обратите внимание, что шторы на кухне рулонные. Ход продуманный. Во-первых окна в этой планировке нелинейные, а под углом. При таком расположении удобно еще использовать римские. Могут быть и классические, но не в данном варианте дизайна: они не подходят по стилю. Зато благодаря тому, что шторы компактные появилась возможность использовать подоконник, а также придать ему интересную форму.

Несмотря на то, что перегородку в санузле убрали, он остается небольшим. Приходится искать место для стиральной машинки, так как в других помещениях ее некуда поставить.

Вид на ванную сверху — видна расстановка предметов

Место для стиральной машинки нашлось под умывальником. Он специально выбран с обширной площадкой. Именно под ней и расположена машинка, а площадка защищает ее от попадания воды.

Фото дизайна совмещенного санузла

Для того чтобы помещение не казалось таким уж маленьким, плитка на стены уложена белая глянцевая. Изюминкой этого интерьера являются панно из плитки в синей гамме — одном из цветов, который присутствует в оформлении других помещений.

Как видите, и этот дизайн двухкомнатной квартиры сделан в одном стиле. В любом помещении прослеживается определенная стилистическая направленность, хотя и по цветовому решению и по создаваемому настроению и ощущению они разные.

Рейтинг
( Пока оценок нет )
Expert/ автор статьи
Загрузка ...