Как быть, если выход канализации располагается выше, чем выход сантехники? Как тогда организовать отвод стоков? В частных домах делали приямок, в который собирались стоки, оттуда качали погружным насосом в канализацию или септик. Сегодня есть другое решение — канализационный насос. Во многих случаях его установка обходится дешевле, а уж проще — так это точно.
Устройство и назначение
Содержание статьи
- 1 Устройство и назначение
- 1.1 Область применения
- 1.2 Устройство и принцип работы
- 2 Достоинства и недостатки
- 3 Классификация и виды
- 4 Правила установки и подключения
- 4.1 Подключение
- 4.2 Особенности отводящего трубопровода
- 5 Производители и модели
- 5.1 Установки принудительной канализации Grundfos (Грюндфос) — Sololift (Сололифт)
- 5.2 Насосы для туалетов, ванных комнат, кухонь и технических помещений SFA
- 5.3 Фекальные насосы CompactLift фирмы Aquatik
- 5.4 Канализационные насосы Willo
- 5.5 Напорные канализационные насосы STP (Jemix)
Насос с измельчителем — поверхностная канализационная насосная установка, позволяющая организовать отвод стоков там, где сделать это при помощи самотечной системы нет возможности. Это небольшая пластиковая емкость с мощным встроенным насосом, который перекачивает стоки в канализацию. Перемещение стоков может быть как по вертикали, так и по горизонтали. Есть установки с измельчителем, которые могут подключаться к унитазам, есть без измельчителя — для «серых» стоков от раковин, душа, биде и т.д.

Канализационный насос для унитаза и другой сантехники имеет небольшие размеры
Область применения
Применяется канализационный насос в тех случаях, когда невозможно сделать самотечную канализационную систему. В большинстве случаев когда сантехнический прибор, стиральная или посудомоечная машинка установлены ниже входа в канализацию. Для этого и придуманы насосы принудительной канализации. Это решение позволяет переносить санузлы и технические помещения в подвальные или полуподвальные помещения.

Подключать санитарные насосы можно в ванной, туалете, кухне, прачечной. В любом помещении, где требуется слив воды, а канализационный сток находится далеко
Еще насос с измельчителем ставится если санузел решено сделать после окончания ремонта и канализация к месту предполагаемой установки сантехники не подведена. В этом случае устанавливаемая техника подключается к компактному канализационному насосу, а он подключается к канализации. В чем отличие? В следующем:
- диаметр отводных труб для канализационного насос намного меньше, чем для самотечной системы (28-40 мм);
- стоки могут подниматься вверх на высоту до 9 метров;
- горизонтальное отведение сточных вод возможно до 100 метров (требует наличия минимального уклона 1-4%).
Все это позволяет с минимальными затратами организовать подключение к существующей канализации практически в любом месте.
Устройство и принцип работы
Состоит канализационный насос из накопительной пластиковой емкости и насоса. Некоторые модели, которые могут подключаться к унитазу, имеют измельчитель. Уровень заполнения контролируется датчиком. Когда он срабатывает, включается измельчитель и насос, стоки выкачиваются в канализационную систему. Отключение контролирует второй датчик — он отключает питание, когда уровень стоков падает ниже определенной отметки. Это — упрощенный алгоритм действия напорной канализации.

Канализационный насос с измельчителем: устройство
Есть канализационные насосные станции рассчитанные на подключение устройств разного типа и количества. Самый простой предназначен для подключения одного или двух устройств, самый производительный — имеет три дополнительных патрубка (и один основной). Соответственно, в емкости есть одно или несколько входных отверстий (зависит от модели) и одно выходное отверстие. Ко входным отверстиям подключаются трубы, идущие от сантехники, а выход подключается к канализации.
Для откачки высокотемпературных стоков от стиральных и посудомоечных машин, ванных есть специальные модели, выполненные из термостойких материалов. Обычный канализационный насос с такой нагрузкой не справляется. Потому для подключения такого оборудования нужно искать определенные модели.
Достоинства и недостатки
Главное достоинство компактных индивидуальных канализационных установок в том, что они позволяют обустроить канализацию без проведения масштабных строительных или ремонтных работ. С их помощью решаются сложные задачи:
- Устройство стока при расположении сантехнических приборов ниже точки входа в канализационную систему.
- Оборудование ванной комнаты без проведения масштабных общестроительных работ.
Другой положительный момент — использование труб малого диаметра. Большая часть насосов для унитаза подсоединяется к канализации при помощи пластиковых труб диаметром 28 мм — 32 мм — 40 мм. Только установки с большой производительностью требуют установки 50 мм труб. Такие сантехнические сети проще спрятать. Даже если спрятать их не удалось, они привлекают не так много внимания, как стандартные на сто миллиметров.

Примеры канализационных насосов для унитаза и ванной
Тем не менее, существуют и недостатки:
- Зависимость от электричества. Нет питания — канализация не работает. Для бесперебойной работы требуется резервированный источник.
- Насосы шумят. Производители улучшают свои изделия, устанавливают насосы с меньшим уровнем шумов, но они все равно присутствуют.
- Требуется соблюдение определенных правил эксплуатации. Например, нежелательно попадание в измельчитель волокнистых материалов. С туалетной бумагой современные измельчители справляются хорошо, а вот с волокнистыми составляющими и волосами — проблема. Они наматываются на винт, снижая качество измельчения. Рано или поздно винт блокируется. Установленный датчик перегрева не позволит оборудованию сгореть — отключит его раньше. Но установку придется разбирать и чистить, а это — не самое приятное занятие.

Есть компактные модели для установки в нишах
Ну, и основной недостаток — насосы перегорают. Если мощность и производительность подобраны правильно, в канализацию не попадают неподходящие предметы, работать они могут годами. Но при ошибке подбора, когда оборудование эксплуатируется на пределе возможностей, насосы часто не выдерживают. Потому, при выборе канализационный насос для туалета лучше взять с запасом по производительности. Это обойдется дороже, но проработает такая установка дольше.
Классификация и виды
Единой классификации установок принудительной канализации нет, но разделить их можно по нескольким параметрам:
- Наличие измельчителя. Он нужен, если канализационный насос будет подключен к унитазу.
- Производительность. Это объем стоков, который может откачиваться в единицу времени. Есть установки с небольшой производительностью и с очень даже солидной. Выбор зависит от количества и вида подключаемых устройств.
- Температура откачиваемой среды — от 40°С до 90°С. Тут все понятно — стоки от посудомоечной и стиральной машины, ванны требуют наличия канализационных насосных станций, способных перекачивать стоки с высокими температурами.
- Длительность работы. Есть установки которые могут включаться только кратковременно (ставят на одно-два устройства), а есть более «долгоиграющие» (могут использоваться для отведения стоков целого дома). Обычно это указывается в характеристиках как длительность работы. Стоять может процент — 50%. Это значит, что 30 секунд установка работает, 30 секунд «отдыхает». Может быть прописан интервал работа/остывание с секундах или минутах.

Канализационный насос для душа — с установкой под поддоном
При выборе насоса для принудительной канализации стоит помнить, что на подключение ванны они не рассчитаны. В ванных содержится слишком большой объем воды, откачивая который насос перегреется и заблокируется. В результате спускать воду из ванной придется долго. Есть только несколько моделей принудительной канализации, которые справятся с этой задачей — SFA Saniplus Silence и Sololift C3. Эти канализационные насосы отлично справляются с большим количеством спускаемой теплой воды.
Другие фирмы предлагают для принудительной откачки стока из ванной сделать промежуточный приямок, в который сливать воду. Из него уже насосом качать в канализацию любым подходящим устройством. С учетом того, что приямок должен находиться ниже уровня стока, такой способ далеко не всегда приемлем. И, несмотря на высокую стоимость SFA Saniplus Silence и Sololift C3, выгоднее бывает установить его, чем проводить огромный объем земляных работ.
Для предотвращения переполнения резервуара есть дополнительное устройство сигнализации. В одних фирмах оно просто подает звуковой сигнал о переполнении емкости, в других еще и отключает подключенное через него устройство (стиральную или посудомоечную машину).
Правила установки и подключения
Установка и подключение насосов для унитазов и принудительной откачки стоков разных производителей происходит по очень схожим правилам. Но перед монтажом стоит прочесть инструкцию к конкретному изделию — могут быть особенности.

Канализационный насос может стоять на кухне — для отвода стоков от раковины и/или посудомоечной машины
Подключение
Место установки надо выбирать с таким условием, чтобы к насосу можно было добраться. Особого обслуживания он не требует, но периодически возникает необходимость в очистке. Если к насосу подключены посудомойка и стиральная машина, лучше регулярно проверять не забита ли канализационная установка жиром, грязью, отложениями солей. При необходимости возможна очистка мягкими средствами. Агрессивные химические составы лучше не применять, так как они могут повредить пластиковые и резиновые части установки.

Если канализационный вход находится выше чем надо
Итак, вот общие правила:
- Индивидуальная канализационная установка должна быть заземлена. Потому розетка должна быть трехпроводной с работающим заземлением. (Про устройство контура заземления в частном доме читаем тут).
- Для безопасности на линии электропитания должен стоять защитный автомат и УЗО.
- При монтаже блок фиксируется к полу. Для уменьшения уровня шумов желательна установка на виброгасящее основание (резиновая прокладка). К стене прижимать корпус нежелательно — чтобы не передавалась вибрация от насоса. Эти меры нужны для снижения уровня шумов.

Канализационный насос может стоять на кухне — для отвода стоков от раковины и/или посудомоечной машины
- Выпускной трубопровод выполняют из жестких сантехнических труб. Есть два рекомендуемых варианта — пластиковые канализационные и медные трубы. Фитинги рекомендованы жесткие, неразъемные.
- Трубопроводы должны быть неподвижно зафиксированы (к стенам, полу и т.д.).
Вообще, установка и подключение канализационного насоса для кухни или туалета — не очень сложно мероприятие. Но при условии, что вы уже имеете какое-то представление о работе с сантехникой. В этом случае можно сделать все самостоятельно.
Особенности отводящего трубопровода
Компактные сантехнические насосы для туалета могут перекачивать стоки не только по вертикали, но и могут их поднимать вверх. При наличии вертикального участка в нижней его части желательно предусмотреть возможность слива — если придется прочищать трубопровод от засора, лучше, если стоки будут слиты в определенном месте, а не начнут выливаться во время работ.
Высота вертикального участка отводящего трубопровода определяется с учетом минимального уклона горизонтального участка. У каждого производителя (иногда у каждой модели) минимальный уклон свой, но в большинстве случаев он составляет 1-4% ( 1-4 см на 1 метр).

Правила установки канализационного насоса
Будьте внимательны. В описании канализационных насосов указана максимальная высота подъема стоков и максимальная дальность транспортировки по горизонтали. Например: 8 м вверх, и 80 м по горизонтали. Но это не значит, что подняв трубу на 4 метра вверх, можно будет транспортировать еще по горизонтали 80 метров. В данном случае — после четырехметрового подъема — протяженность горизонтального участка будет не более 40 метров. Просто подъем на 1 метр вверх «отбирает» около 10 метров транспортировки по горизонтали. Это важно и это стоит помнить.
Производители и модели
Индивидуальные канализационные установки производит не так много фирм. Тем не менее, диапазон цен довольно широкий. Традиционно, европейские производители отличаются хорошим качеством, но высокими ценами. Никто не удивится, если сказать, что китайские канализационные насосы стоят меньше, но и качество у них хуже. В общем, выбор, как обычно — дорого и качественно, или дешевле и…
Установки принудительной канализации Grundfos (Грюндфос) — Sololift (Сололифт)
Известный производитель сантехники Grundfos (Грюндфос) выпускает насосы для принудительной канализации Sololift (Сололифт). На данный момент запущена модифицированная линейка Sololift2. В ней нет подвижных частей, имеющих контакт со стоками. Исключение — измельчитель, но его привод тоже «сухой». Это делает ремонт не таким неприятным занятием. Есть несколько моделей Сололифт для разных случаев:
- WC1 — с измельчителем, одним основным и одним дополнительным входом. Подходит для подключения унитаза и умывальника.
- WC3 — насос с измельчителем для подключения унитаза и тремя дополнительными входами.
- CWC3 — тоже, что и WC3, только для подключения подвесных унитазов.

Основные характеристики канализационных насосов Сололифт
- C3 — фекальный насос большой производительности, может откачивать стоки с температурой до +90°С, перекачивать стоки из ванны, от стиральной и/или посудомоечной машины.
- D2 — насос для горячих сточных вод (с температурой до +90°С) без твердых примесей. Подключаться может к душу, умывальнику, к стиральным и посудомоечным машинам.
Насосы для канализации Сололифт — не самое дешевое оборудование, но они работают надежно, соответствуют заявленным характеристикам. Фирма также поддерживает гарантийный ремонт.
Насосы для туалетов, ванных комнат, кухонь и технических помещений SFA
Эта фирма специализируется на производстве сантехнических насосов. Есть несколько линеек для решения разных задач, подключения различных устройств:
- Saniaccess — бытовой насос измельчитель для унитаза с возможностью подключения умывальника и душа (модификации с цифрами 2 и 3 соответственно). Имеет небольшую производительность.
- Sanibest — насос для унитаза и канализации с большой производительностью. Подходит для частных домов с высокой интенсивностью использования и для общественных мест.
- SANIBROYEUR — бесшумный насос для унитаза, имеет измельчитель, может транспортировать стоки на 4 м вверх или на 100 м в сторону.

Размеры SFA SANIBEST Pro
- Sanipack — компактный насос для канализации, к которому можно подключить подвесной унитаз и душ/раковину/биде. Может встраиваться в перегородку из-за небольших размеров.
- Saniplus Silence — мощный насос, который может отводить воду от нескольких сантехнических приборов. Отличается малошумной работой и большой производительностью. Может справиться со стоком от ванной.
- Sanipro XR Silence самая тихая модель для откачки канализационных стоков от полноценной ванной комнаты (без ванны).
- SaniTop — установка принудительной канализации для подключения унитаза и раковины. Это более новая модель по сравнению с Saniaccess работает тише, имеет более мощный насос.
Продукция фирмы SFA работает надежно, стоит она немного меньше Грюндфуса. Можно подобрать модель под любую комбинацию сантехники. В общем канализационный насос SFA — хороший вариант. Установка оборудования стандартна — поставить в любом удобном месте. Есть только одно ограничение — лучше, чтобы отводной трубопровод начинался с вертикального участка, если таковой имеется на вашей трассе. Если такое невозможно, длина горизонтального участка должна быть не более 30 см.
Высоту вертикального участка рассчитывается с учетом того, что горизонтальный должен иметь уклон в сторону входного отверстия не менее чем 1% (1 см на 1 метр трубы).
Фекальные насосы CompactLift фирмы Aquatik
Насосы для унитаза Компакт Лифт производит китайская фирма Акватик. Это более бюджетный вариант индивидуальных канализационных установок. Отличаются низким уровнем шумов.
На данный момент есть только три модификации:
- Compact LIFT 250. Установка для откачки серых стоков (без фекалий и туалетной бумаги). Небольшая мощность 250 Вт и расход 119 литров/мин позволяет подключить душ и раковину.

Канализационный насос Aquatik Compact LIFT
- Aquatik Compact LIFT 400. Компактный фекальный насос с возможностью подключения унитаза с прямым выпуском и трех дополнительных сантехнических приборов. Мощность — 400 Вт, производительность 149 литров/мин.
- Aquatik Compact LIFT 400 А. Для подключения подвесных унитазов. Технические характеристики похожи. сери
Фирма Aquatik предоставляет гарантию на свои насосы для ванных комнат и туалеты — 1 год с момента продажи. Нарушение эксплуатации (наличие волокнистых включений в стоках) может стать причиной отказа в гарантийном ремонте.
Канализационные насосы Willo
Немецкая фирма Вилло (Willo) известна тем, что выпускает надежные устройства. Не исключение и насосы для унитазов. Хорошее качество пластика, толстые стенки резервуара, надежный насос. Есть следующие модели:
- HiDrainlift 3-24 — для обслуживания чистых стоков без фекалий и туалетной бумаги (душ, умывальник, писуар). Мощность 300 Вт, расход 58 литр/мин.
- HiDrainlift 3-25 — насос для подключения унитаза с прямым выпуском и тремя дополнительными патрубками для подключения душа, умывальника и т.д. Мощность 400 Вт, максимальна производительность 100 литров/мин.
- HiSewlift 3-15 — для подключения одного напольного унитаза. Плюс имеет один дополнительный вход для подключения умывальника/душа/писуара/биде. Мощность 450 Вт, максимальный расход 75 литров/мин.

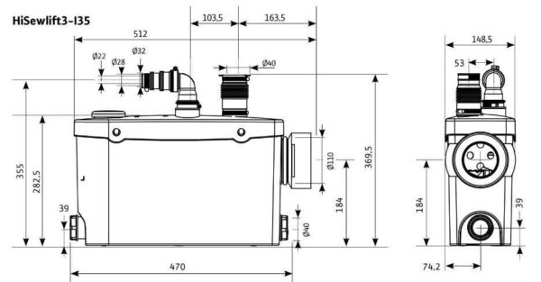
Размеры одной модели насоса для ванной Willo
- HiSewlift 3-35 — один вход для откачки стоков унитаза и три входа для подключения устройств с серыми стоками — умывальник/биде/писуар/душ. Потребляемая мощность 450 Вт, производительность 75 литров/мин.
- HiSewlift 3-I35. Более компактная установка с параметрами, аналогичными HiSewlift 3-35.
- DrainLift KH 32. Для подключения подвесного унитаза, оснащен тремя дополнительными патрубками для подключения сантехнического оборудования с чистыми стоками. Потребляемая мощность 450 Вт, откачивать может не более 75 литров/мин.
- DrainLift XS-F — аналогично DrainLift KH 32, но меньших размеров, для монтажа в стеновую нишу.
- DrainLift TMP 32. Для подключения серых стоков — без фекалий и туалетной бумаги. Есть два отвода, к которым можно подключить стиральные или посудомоечные машины.

Характеристики трех моделей канализационных насосов Вилло
- DrainLift TMP 40. Для откачки бытовых сточных вод (без фекалий). Подключаться может к кухне — есть возможность подвести стоки от раковины, посудомоечной машины. Отличается от всех моделей штатной комплектацией — в ней установлен поплавковый выключатель, который отключит насос посудомоечной машины при признаках переполнения резервуара.
Ассортимент канализационных насосных установок Willo позволяет решить любые задачи при необходимости оборудования ванных и туалетных комнат в частных домах. Для коммерческого или более интенсивного использования у Вилло существуют другие решения.
Напорные канализационные насосы STP (Jemix)
Эти индивидуальные канализационные установки производятся в Китае. Ценовая категория — средняя. Отзывы, как водится, разные — кого-то полностью устраивает, ком-то категорически не нравится.
Итак, вот какие насосы для канализации предлагает Jemix:
- STP-100 Lux. Для подключения унитаза с двумя дополнительными входами (умывальник, писуар, душ). Мощность 600 Вт, производительность 200 литров/мин, высота вертикального подъема — 9 м, горизонтального — 90 м, максимальной температурой +90°С.
- STP-400 Lux. Насос для унитаза со схожими возможностями подключением. Только температура стоков не выше +40°С, мощность 400 ВТ, производительность 100 литров/мин, высота подъема стоков — до 8 метров, горизонтальная транспортировка — до 80 м.

Примерные цены на канализационные насосы STP (Jemix)
- STP-800. Тоже можно подключить один напольный унитаз + два дополнительных входа. Но мощность 800 Вт, напор 150 литров/мин, подъем 9 м, по горизонтали — 90 м. Транспортировать можно только теплые стоки — до +40°С.
- STP-200. С одним входом для подключения унитаза и двумя дополнительными. Меньшая мощность — 400 Вт, откачать может 100 литров/мин, максимальная высота — 8 м, транспортировка по горизонтали — 80 м, температура транспортируемой среды не выше +40°С.
- STP-250. Для отвода серых стоков (без твердых включений). Имеет два входа (душ, умывальник, биде). Мощность 250 Вт, высота подъема стоков — до 5 м, по горизонтали транспортировка не далее чем на 50 м, откачать может не более 80 литров/мин.
- STP-500 Lux. Этот насос предназначен только для унитаза. Дополнительных выходов нет
От описанных выше отличается повышенной мощностью — некоторые модели поднимают стоки на 9 метров. Большинство описанных выше канализационных напорных насосов могут поднимать вверх стоки на 4-5 метров. Так что в этом Джемиксы выигрывают. По этому параметру у них есть только один конкурент — Sololift Grundfos с его высотой подъема 8 метров. Но ценовая категория у него совсем другая (как и качество, впрочем).