Минимализм в интерьере квартиры: 60 идеальных фото-примеров для вашего уюта

Стиль минимализм в интерьере квартиры с годами приобретает всё большую популярность. Неудивительно, ведь сейчас наступила эра эргономичности, и каждый квадратный метр ценится на вес золота.

Как оформить интерьер без излишеств и при этом остаться довольными результатом? Не знаете? А мы знаем! Ведь, в конце концов, Dekorin для того и создан, чтобы приходить к вам на помощь в самых сложных ситуациях!

Готовы вдохновляться?

Тогда по коням!

Минимализм в интерьере однокомнатной квартиры: красота в простоте

Знаете ли вы, что понятие минимализма в дизайне интерьеров стояло у истоков практически всех новомодных стилей, таких как: лофт, хай-тек, современный. Это не зря. Обстановка, где нет ничего лишнего, очень успокаивает, несёт умиротворение и создаёт уют. А что ещё нужно для дома? Тем более полезен минимализм в интерьере малогабаритной квартиры.

Сейчас мы рассмотрим пример удачного дизайнерского решения для однокомнатной квартиры в стиле минимализм. Следите внимательно!

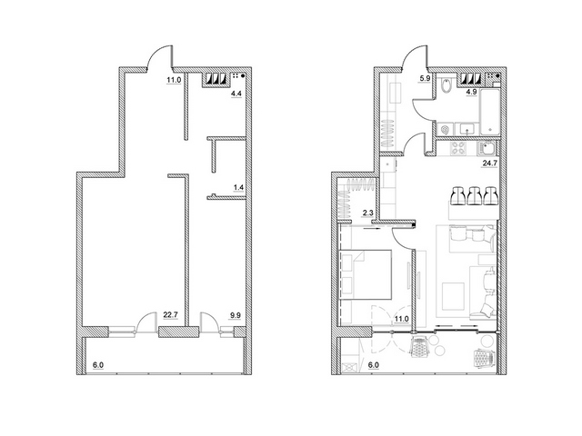
Давайте начнём с планировки. Для того, чтобы вам было лучше понятно о чём идёт речь, взгляните на чертёж:

Как видим, квартира довольно узкая, из-за чего могли возникнуть проблемы с эргономичностью. Однако профессионалов dekorin.meтак просто не возьмешь, и вот что получилось! (см. фото ниже)

  • Это сердце всей квартиры — гостиная. Как видите, цветовая гамма сконцентрирована вокруг трёх оттенков: белого, контрастно чёрного и светло-древесного. Всё, больше ничего лишнего!

  • Идём дальше. Напротив дивана установлен многофункциональный короб, встроенный шкаф рядом повторяет текстуру и цвет стены за диваном, а это добавляет интерьеру гармоничности.

  • Дальше спальня. Кровать и шкаф-гардеробная комната — вот всё что нужно для счастья. Заметьте, никаких прикроватных тумбочек, только выдвижные ящики внизу около кровати. Такой приём очень сэкономит пространство в комнате.

  • Из спальни есть выход на небольшой балкон, он оснащён панорамными окнами.
    Представляете, как замечательно встречать и провожать день на таком балконе?

  • Кухня тоже очень небольшая, зато все девайсы надёжно спрятаны за её фасадом. Как видите, пространство кухни и гостиной совмещено, но при этом, прекрасно зонировано барной стойкой, которая так же успешно выполняет функцию обеденного стола.

  • Прихожая выполнена в белоснежном цвете. Шкаф купе при входе полностью литой, а сбоку оформлен лаконичный туалетный столик.

  • Несмотря на небольшие габариты квартиры, ванная комната здесь смотрится довольно просторно. Только посмотрите!

На примере, приведённом выше, вы убедились, что минимализм в интерьере однокомнатной квартиры — очень удачное и стильное решение. Минимум заморочек, ничего лишнего, только комфорт, только красота!

Минимализм в интерьере квартиры: 2-х комнатные апартаменты

Эта шикарная двухкомнатная квартира оформлена в стиле минимализм с вкраплениями классических элементов. Очень нежная, воздушная атмосфера воцарилась в этих апартаментах благодаря светлой цветовой гамме.

  • Прихожая довольно светлая и уютная. Несмотря на то, что коридор довольно узкий, зеркала в пол визуально увеличивают пространство. Как и в однокомнатной, описанной выше, квартире тут оборудован туалетный столик для удобства гостей и хозяев квартиры.

  • Хоть комнат в квартире две, дизайнерам удалось создать уютную гостиную-кухню-столовую, которая (кстати сказать) смотрится очень даже удачно.

  • Спальня представляет собой очень уютное и светлое пространство с отдельной гардеробной комнатой. Множество зеркал и точечное освещение визуально осветляет комнату и придаёт ей лоск.

  • Детская комната, как и положено, просторная и светлая. Снаряды для физзарядки и яркие элементы интерьере (подушки например), делают это помещение милым и уютным. Посмотрите сами!

  • Ванная комната очень стильная и функциональная, всё на месте. Смотрите сами:

Минимализм в интерьере квартиры, эти замечательные 2-х комнатные апартаменты, наполняют душу теплом и радостью. Всё дело в том, что здесь нет случайных элементов, всё продумано до мелочей — это главный «козырь» минимализма.

Японский минимализм в интерьере квартиры: фото-примеры удачных идей

Достоверно неизвестно, но Япония точно достойна считаться прародительницей минимализма в дизайне интерьеров. Спокойный, умиротворённый образ жизни японцев описан во многих художественных и исторических трактатах. Давайте же возьмём урок у этого мудрого народа, и используем японский минимализм в интерьере квартиры как полагается!

  • Прямые углы, правильные геометрические формы, кровать в форме татами, бонсай и бумажные створки — вот те элементы, которые наполнят ваш дом атмосферой Востока.

  • В японских интерьерах (как и в философии) преобладает тема гармонии и единения с природой. Именно такие натуральные материалы как: необработанный камень, бамбук и живые цветы сделают вашу квартиру по-особенному уютной.

  • Японский минимализм в интерьере квартиры так же предполагает большое количество естественного освещения. Панорамные окна от потолка в пол будут как нельзя лучше смотреться в комнате в восточном стиле.

Как вы уже успели убедиться, минимализм в интерьере квартиры — прекрасное решение, особенно для городских малогабаритных помещений. Мы надеемся, что все вышеизложенные примеры пойдут на пользу и вдохновят вас на покорение новых, дизайнерских вершин.

Творите, креативьте и наполняйте свой дом уютом и красотой!

Всегда ваш dekorin.me !

Рейтинг
( Пока оценок нет )
Expert/ автор статьи
Загрузка ...