В любом заборе должен быть вход. Для въезда машин делают ворота, для прохода людей — калитки. Их делают на каркасе из дерева или металла, заполнение подбирают такое же как в ограде или что-то оригинальное. Если вход между двух кирпичных стен, заполнение можно выбрать по своему вкусу. Причем сделать калитку своими руками не так и сложно, во всяком случае, некоторые несложные варианты.
Устройство
Содержание статьи
- 1 Устройство
- 2 С каркасом из профильной трубы с профлистом, металлом…
- 2.1 Размеры и материалы
- 2.2 Пример самостоятельного изготовления: фотоотчет с пояснениями
- 2.2.1 Варим раму
- 2.2.2 Ставим петли
- 2.2.3 Финишные работы
- 3 Деревянная калитка для дачи
- 3.1 Простая садовая калитка
- 3.2 Как сделать калитку из досок: правильная конструкция
- 4 Фото красивых калиток
Калитка состоит из опорных столбов и дверного полотна на раме, которое крепится к столбам при помощи петель. Столбы могут быть кирпичные (каменные), деревянные или металлические. В кирпичные при кладке замуровывают небольшие куски толстого металла или толстый металлический прут, к которым впоследствии приваривают раму.

Необычные калитки с деревянным каркасом и оригинальным заполнением
Металлические столбы делают из круглой или профилированной трубы с толстыми стенками. Круглые трубы используют все реже: к ним сложнее приваривать, крепить что-либо. Профилированная труба при том же сечении (диагональ по сравнению с диаметром) и толщине стенки выдерживает большие ветровые нагрузки, к плоским граням проще приваривать или крепить при помощи саморезов, болтов. Поэтому именно ее все чаще используют при устройстве калиток. Еще один вариант — к каркасу из профильной трубы приварить металлический уголок. В этом случае заполнение получится как бы в рамке.

Устройство калиток с деревянной и металлической рамой одинаково
Деревянные столбы обычно используют если забор деревянный. Чаще всего столбы — это сосновый брус, обработанный защитными пропитками. Они предотвращают (или замедляют) разрушение древесины. Но бывают и такие случаи, когда столбы ставят металлические, а калитка и ограда при этом деревянные. Это потому что древесина в земле быстро сгнивает, даже после защитной обработки.
Немного о конструкции опорной рамы. Это может быть просто два столба вкопанных в землю — вариант подходит, если грунт не склонен к пучению (пески, супеси, плодородные, но не глинистые почвы).

Столбы повело. Если вверху и внизу будут перемычки (в данном случае можно сделать арку вверху), вероятность такой неприятности намного снизится
Для пучинистых грунтов (глина, суглинки) желательно чтобы столбы были соединены вверху и внизу. В таком случае вероятность перекоса калитки после зимы очень мала. Если вы не хотите делать порожек в проеме, нижнюю перемычку можно опустить ниже уровня земли (на штык–полтора). Ее надо будет тщательно покрыть антикоррозионным составом, прогрунтовать, и покрасить в несколько слоев. А еще чтобы избежать перекоса, следует закапывать столбы ниже уровня промерзания хотя бы на 15-20 см.
Каркас калитки делают из металлической трубы или деревянных брусков. Древесина используется для деревянных заборов, металл — во всех остальных случаях.
С каркасом из профильной трубы с профлистом, металлом…
Самый, пожалуй, универсальный вариант калитки — с каркасом из профильной трубы или металлического уголка. На металлическое основание можно прикрепить любой материал заполнения: древесину, листовой металл, профнастил, металлический штакетник, плоский шифер, поликарбонат, сетку-рабицу, металлические пруты, кованные или гнутые элементы… сделать комбинацию из нескольких материалов. Вариантов очень много, если хотят сделать калитку, обычно подразумевают именно квадратную трубу, а оформление подбирают в одном стиле с оградой.

Каркас из профильной трубы. Заполнение — холодная ковка и древесина
Размеры и материалы
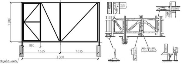
Для калитки со сплошным заполнением (древесины, листовой металл, профлист и т.д.), для столбов берут профилированную трубу сечением 60*60*3 мм. Более толстые стенки брать можно, более тонкие — лучше не надо. Для рамы обычно используется прямоугольная труба 40*20*2,5 мм. Прочности этой трубы достаточно для средних ветровых нагрузок. При небольших ветровых нагрузках можно стенку взять 2 мм, но варить будет сложнее. Все что тоньше 2,5-3 мм сваривать надо в особом режиме и это далеко не просто. Если ветра более сильные, можно или увеличить толщину стенки, или использовать прокат большего сечения: 40*30 или 40*40, даже 40*60.
Высота калитки с верхней перекладиной обычно около двух метров, без перекладины — от 1,2 м. Низкие обычно делают во внутренних заборах, разграничивающих участок или в полупрозрачных невысоких наружных оградах. Для глухих высоких заборов из профлиста, древесины, плоского шифера более характерна высота на уровне забора. Ширина калитки — минимальная 90 см, оптимальная 100-110 см.
Еще стоит поговорить о том, на какую глубину закапывать столбы. Стандартное решение — на 15-20 см ниже глубины промерзания. Исходя из этого числа и высоты калитки изготавливают столбы.

Дополнительные укосины увеличивают жесткость
При помощи бура в земле делают отверстие, на дно которого засыпают ведро щебня средней фракции. Потом устанавливается столб, выставляется вертикально, засыпается щебнем (можно битым кирпичом и другим строительным мусором), утрамбовывается, заливается бетонным раствором. Когда раствор наберет не менее 50% прочности (через 7 дней при температуре +20°C), можно крепить каркас к столбам. Если вы хотите сделать калитку правильно, именно так и поступайте.
Пример самостоятельного изготовления: фотоотчет с пояснениями
Ограда — из профлиста с кирпичными столбами, соответственно и калитка из профлиста. В столбы еще при строительстве замурованы металлические пластины, сваренные с трубой в середине. Решено сделать калитку с дополнительными укосинами — чтобы профлист был жестче закреплен, а также чтобы усилить зону крепления замка. Замок — старый пока, возможна замена.

Конечный результат
Каркас калитки варим при помощи инверторного сварочного аппарата из профильной трубы 40*20*3 мм. Ставить будем»по месту», привариваясь к закладным. Отрезаем заготовки:
- две поперечины длиной от одного столбы до другого (получилось 108 см),
- две стойки — высотой 185 см.
Варим раму
Поперечины не привариваем, а только «прихватываем» к закладным пластинам — чтобы держались. Буквально по две точки сварки на место крепления. Перед сваркой второй стороны проверяем горизонтальность перекладины. Кладем строительный уровень, корректируем положение, потом прихватываем. Итак, получится, что в проеме две горизонтальные перемычки.

Прихватываем поперечины к закладным двумя точками
К установленным поперечинам привариваем вертикальные стойки. Они должны быть вертикальными — в месте соединения с перемычками угол строго 90°. Проверяем в процессе соединения, при необходимости корректируем. Еще: шов должен быть хорошим, прочным, обвариваем со всех сторон, по периметру трубы.

И с другой стороны
В результате получилась рама прихваченная к столбам. Еще раз проверяем углы, иначе потом может перекосить, калитка перестанет закрываться/открываться.
Ставим петли
Далее самый ответственный момент — надо приваривать петли. Взяли стандартные металлические петли для распашных ворот, которых полно в любом строительном магазине и на рынке. Они должны быть установлены строго вертикально, да еще обе на одной оси. Иначе калитка не будет открываться.
Привариваем петли.

Калитка с каркасом из профильной трубы — устройство и размеры
Первой привариваем нижнюю петлю, множество раз перепроверяя ее вертикальность уровнем. Вторую стараемся установить на том же оси. Сначала прихватываем к закладной, проверяем и лишь потом, если все совпало, тщательно провариваем шов. Если все рассчитано правильно, петля прилегает к трубе каркаса, так что приварить труда не составит.

Петля приварена на калитку
Когда петли установлены, убираем «прихватки», которые держат калитку. Она волшебным образом теперь открывается/закрывается. Далее дело за малым — приварить укосины. Работа элементарная: отрезаем куски трубы одинаковой длины, прикладываем к предполагаемому месту установки, отмечаем мелом как надо срезать. Берем болгарку с режущим диком по металлу, отрезаем, проверяем, если надо, дорабатываем (болгаркой или напильником — в зависимости от величины «косяка»). Когда укосина «стала», привариваем ее.

Приварить укосины несложно
Аналогично довариваем усиление под замок на калитку. Для монтажа старого металлического замка вверху понадобилось приварить кусок уголка, иначе не получалось его закрепить.

Сделать калитку — это еще и приварить замок (когда покрасится, будет выглядеть лучше)
Последние сварные работы — надо закрыть открытые срезы труб, которые направлены вверх и в стороны. Если их не закрыть, в них будут попадать дождевая вода и снег, трубы начнут ржаветь изнутри, что ускорит смерть каркаса. Сварка на этом этапе не обязательна, можно заделать силиконом или найти пластиковые крышки подходящего размера.
Финишные работы
Это все. Калитку почти сделали. Далее — стандартные работы по металлу — шлифовка, грунтовка, покраска каркаса и последним этапом — крепление заполнения. В данном случае оно ничем не отличается от монтажа профлиста на забор.
На УШМ (болгарку) ставим наждачный круг по металлу, зачищаем все места сварки, убирая ржавчину и т.д. Кстати, делать все это удобнее когда калитка стоит на месте. Если ее снять, работать будет не так удобно, придется ее переворачивать, ходить вокруг нее кругами…

Калитка после грунтовки
Чтобы каркас калитки долго не облезал, обработаем его преобразователем ржавчины, потом грунтовкой. Далее можно крепить профлист. Его надо отрезать по размеру, примерить.

А это уже конечный результат: решили сделать калитку, сделали…
Однозначно придется где-то подрезать, чтобы все открывалось. Поэтому для начала отрезанный лист крепим буквально на четыре самореза — по углам, наносим отметки — где что подрезать, снимаем, отрезаем, снова примеряем. Когда добились нормальной работы, можно крепить «на века».
Деревянная калитка для дачи
Заборы на дачах редко представляют собой неприступную преграду. Обычно это не слишком высокие деревянные заборчики. Для такой ограды имеет смысл сделать калитку из дерева. Есть совсем простая, без затей. Нужны будут только сухие доски (при условии, что столбы уже есть).
Если нет деревообрабатывающих станков (рейсмуса, фрезера), проще купить обрезную доску нужных параметров. Ширина/толщина досок произвольная, как и расстояния между планками. Чаще всего используют сосновую доску шириной 6-10 см и толщиной около 2 см, расстояние между планками — 2-6 см. Можно и больше, и меньше — зависит от желаемой степени «прозрачности».

Один из самых распространенных вариантов
Доски желательно иметь сухие. Камерой сушки вряд ли кто будет использовать, но выдержанные пару лет или хотя бы полгода-год (влажность порядка 25%) — это уже отлично. Чтобы древесина дольше не разрушалась, ее необходимо обработать защитными пропитками. Сейчас есть составы, которые защищают даже древесину, которая лежит на земле (защитные пропитки для дерева, находящегося в непосредственном контакте с землей). Но некоторые из них придают древесине посторонний оттенок (чаще всего зеленоватый, оливковый). Если калитку собираетесь красить, это не страшно. Если же собрались использовать светлый лак, обратите внимание на этот момент.
Простая садовая калитка
Это самая простая калитка которую может сделать обычный человек, не плотник. Если вы умеете пилить, держать в руках молоток, забивать гвозди, все получится. Ничего более сложного делать не придется.
Берут две планки или два бруса (параметры зависят от веса калитки). По длине они равны ширине будущей калитки. Эти бруски укладывают поперек. Расстояние между ними — немного меньше высоты калитки. Имеет смысл расположить их на том же расстоянии, как и тетивы на прилегающем заборе (как на фото выше). Тогда калитка будет смотреться частью ансамбля.

Устройство деревянной калитки
Обработанные и высохшие доски-штакетины выкладывают с заданным расстоянием на поперечины. Чтобы выдержать расстояния было проще, можно использовать обрезки одинаковой длины, проложив их между досками (можно и спичечный коробок, если вас устраивают его размеры). Берем гвозди (два на планку вверху и два внизу) и крепим доски к каждой поперечине.
После того как все планки прибиты, переворачиваем полотно калитки, примеряем укосину, очерчиваем линии, по которой надо укосину обрезать. Ножовкой отпиливаем лишнее, ставим на место, крепим — по два-три гвоздя с обоих сторон. Теперь крепим каждую доску к укосу. Это придает калитке дополнительную жесткость.

Как сделать простую калитку из дерева для дачи
Петли выбираем металлические, можно — амбарные. Они есть небольших размеров, как раз для дачных калиток. При желании, крепят их к лицевой части калитки — они придают некую изюминку. С таким же успехом можно их закрепить и с тыльной стороны.
Как сделать калитку из досок: правильная конструкция
Выше описан простой садово-дачный вариант, но есть конструкция посложнее и понадежнее. Тут потребуются минимальные плотницкие навыки: собирается она на соединение шип/паз. Эта деревянная калитка состоит из двух реек обвязки большей толщины, двух перекладин (верхней и нижней) и подкоса. Толщина верхних перекладин и штакетин (вертикальных планок) одинаковая, а толщина реек обвязки в три раза больше (толще можно, тоньше — нет). Например, штакетины, перекладины и укос имеют толщину 20 мм, рейки обвязки — 60 мм.

Как сделать деревянную калитку с каркасом
В рейках обвязки вырезается паз, на концах перекладин — шип. Соединение промазывается столярным клеем, зажимается в тиски. Укос можно установить также — на шип и паз, но он получается сложной формы, приходится на соединение. Поэтому чаще его просто крепят на гвозди — так проще. После того как рама собрана, прибивают штакетины. Их можно прибивать со стороны двора или со стороны улицы. Вместо гвоздей можно использовать болтовые соединения, в этом случае крепеж служит еще и украшением. Имеет смысл поставить нержавеющие или бронзовые заклепки.
Фото красивых калиток
Сделать калитку не обычную, а красивую — это не так уж и сложно. И далеко не всегда для этого требуются дорогие материалы. Что всегда необходимо — это фантазия. Тогда даже велосипед, лопата, сучок или кирка — материал для эксклюзивного дизайна.

Для любимцев))

Для домов в современном стиле калитки нужны соответственные

Из самых разных материалов… даже из сучков

Древесина и кованные элементы — беспроигрышная комбинация

Главный компонент — фантазия

Трафарет изменяет даже самый простой забор

Сделать пару вырезов в досках… оригинальная деревянная калитка готова!

В гости к сказкам

Велосипед, колеса, лопата — все материалы для изготовления калиток

К забору из евроштакетника

Небольшой фрагмент — кот из фанеры…

Оригинальный дизайн… со стороны двора

Даже калитка из профнастила может быть оригинальной