При перепланировке квартиры или строительстве частного дома, приходится ставить новые перегородки. Подобрать для них материал не так то просто. Он не должен создавать чрезмерную нагрузку на перекрытие, должен быть надежным и иметь хорошую несущую способность. А еще желательно, чтобы монтаж был несложным и быстрым, а цена невысокой. Материалов и технологий, отвечающих этим требованиям, не так много. Это гипсокартонные перегородки и пазогребневые плиты. В этой статье будем говорить о пазогребне.
Что это за материал и его виды
Содержание статьи
- 1 Что это за материал и его виды
- 1.1 Влагостойкость и пустотность
- 1.2 Технические характеристики
- 2 Силикатные или гипсовые?
- 3 Как строить из пазогребневых плит
- 3.1 Разметка
- 3.2 Подготовка основания
- 3.3 Для улучшения звукоизоляции
- 3.4 Подготовка плит к монтажу
- 3.5 Первый ряд
- 3.6 Второй и последующие
- 3.7 Угол
- 3.8 Ответвление
- 3.9 Дверной проем
Пазогребневые плиты (сокращенно ПГП) или блоки — крупноформатный строительный материал для возведения перегородок в виде плиты, на торцах которой сформированы гребень (шип) и паз. Отсюда и это название — пазогребневые плиты. Они бывают:
- на основе гипса (литые гипсовые);
- из песка и негашеной извести, спрессованные под определенным давлением и обработанные паром в автоклаве (силикатные).

Размеры гипсовых пазогребневых блоков по ГОСТу и ТУ
В раствор для улучшения свойств добавляют пластификаторы и гидрофобные (водоотталкивающие) добавки. Есть у гипсовых ПГП еще одно название — гипсолитовые плиты. Оно объяснимо: гипсовый раствор заливают в формы. Вот вам и «источник» этого варианта названия.
Влагостойкость и пустотность
По области использования пазогребневые плиты могут предназначаться для нормальных условий эксплуатации (обычные, стандартные) или для влажных помещений (влагостойкие). Влагостойкие для лучшей идентификации подкрашиваются в зеленоватый цвет.

Полнотелые и пустотелые отличаются весом и прочностью
И гипсовые, и силикатные пазогребневые плиты бывают полнотелыми и пустотелыми. Полнотелые более прочные, пустотелые за счет меньшего веса создают меньшую нагрузку на перекрытия. Выбор между полнотелыми и пустотелыми надо делать опираясь на несколько факторов:
- Звукоизоляционные характеристики. Монолитный материал без пустот лучше проводит звуки, поэтому его используют, если звукоизоляция будет сделана отдельным слоем (лучший вариант) или если она не так важна.
- Нагрузки на перегородки. Если на стены надо будет вешать полки, мебель, крепить какие-то тяжелые предметы, использовать лучше монолит.
- Нагрузка на перекрытия или пол. На деревянный пол или на старые деревянные перекрытия лучше ставить менее тяжелые (пустотелые) блоки.
Если учитывать надо несколько факторов, звукоизоляция рассматривается в последнюю очередь. Повысить защиту от шума можно используя специальную технологию монтажа (на виброгасящие прокладки), а также сделав дополнительный слой звукоизоляционных материалов.
Технические характеристики
Если сравнивать обычные и влагостойкие пазогребневые плиты, отличия в характеристиках только в водопоглощении и прочности. Влагостойкие, за счет большего количества гидрофобных добавок, влагу почти не впитывают. Из-за большого числа эти добавок они и стоят дороже, так как добавки эти дорогостоящие. Заодно они и прочность увеличивают (М50 по сравнению с М35).
Кстати, можно «не отходя от кассы» проверить, действительно перед вами влагостойкие ПГП или просто окрашенные в зеленый цвет стандартные. Просто налейте на поверхность немного воды. Стандартные плиты ее быстро впитают, а на водоотталкивающих она будет долго стоять лужицей.

Основные технические характеристики гипсовых и силикатных ППГ
Если же сравнивать гипсовые и силикатные перегородочные блоки, в глаза сразу бросается повышенная прочность последних — М150 по сравнению с М50 и М35. То есть прочность силикатных плит сравнима с бетоном не самой плохой марки. Если вы собираетесь на перегородку навешивать нечто очень тяжелое, лучше использовать силикат. Еще производители выпускают блоки толщиной 115 мм, которые называют межквартирными.

Технические характеристики пазогребневых перегородочных блоков из гипса
Чем еще силикатные плиты отличаются от гипсовых аналогов? Тем что в стандартном исполнении имеют не такую уж и высокую впитывающую способность. Она не настолько низка, как у влагостойких блоков, но этот материал может без проблем использоваться в любых влажных помещениях (13% по сравнению с 26-32%). Минусы этого материала — больший вес (при равных размерах) и более низкие теплоизоляционные характеристики.
Силикатные или гипсовые?
Если сравнивать звукоизоляционные характеристики гипсовых блоков и силикатных, вторые, при равных параметрах, хуже проводят звуки (40-43 дБ у гипсовых и 48-52 дБ у силикатных). Так что для лучшей звукоизоляции выбираем силикат.

Размеры по ГОСТу и ТУ
Но силикатные блоки одинаковых размеров имеют больший вес и более высокую теплопроводность (лучше проводят тепло). Ключевым в выборе является вес, так как звуко и теплоизоляцию можно улучшить при помощи дополнительных слоев специальных материалов, а вот снизить вес перегородки никак не получится. И если ее масса критична для перекрытия, ничего хорошего ждать не приходится.
Как строить из пазогребневых плит
Чтобы перегородка из пазогребневых блоков была надежной и стабильной, необходимо выполнить некоторые условия:
- Ставить блоки на идеально ровное основание с перепадами высоты не более 2-3 мм на метр. Оно должно быть выровнено во всех плоскостях. На бетонных основаниях заливают выравнивающую стяжку (минимальная толщина 3-5 см), на деревянных полах кладут сухой ровный брус.
- Кладка ведется по аналогии с кирпичной — с перевязкой на середине. Используется специальный или плиточный клей. С силикатными блоками можно использовать раствор для кладки пеноблоков.
- Перегородка должна быть строго вертикальной. Отклонение даже в один градус ведет к нестабильности, поэтому контроль обычным строительным уровнем недостаточен. Можно контролировать лазерным уровнем и/или отвесом.

Так выглядит готовая перегородка из пазогребня отделяющая санузел в новостройке
- Максимальная высота перегородки из пазогребневых плит 3,5 метра, максимальная длина — 6 метров.
- Между верхушкой перегородки из ПГП и потолком надо оставить щель 20-30 мм. Этот зазор заполняют монтажной пеной.
- Для придания большей стабильности, примыкание с потолком желательно усилить, забив штыри и замуровав их внутри блоков (не между швами так как швы очень тонкие).
- Звукоизоляция перегородки из пазогребня не слишком высокая. Чтобы вам жить было комфортно, используйте пробковую или битумизированную подкладку под стену, а также обшивайте стены с двух сторон гипсокартоном. Такой «пирог» создает комфортные для проживания условия.
А вообще, необходимо точно соблюдать все рекомендации, строго следовать технологии. Тогда пазогребневые перегородки по прочности и надежности не отличаются от кирпичных, а возводятся в разы быстрее.
Разметка
Начинается кладка простенка из пазогребня с разметки. Если есть лазерный построитель плоскостей — все просто: развернули плоскость, нарисовали линии на полу, стенах, потолке. Если такого инструмента нет, придется потратить больше времени. Потребуется отвес. Тот, который в смартфоне не подойдет — это не измерительный инструмент. Лучше купить в строительном магазине или сделать из бечевки и отцентрованного грузика.

Стена из пазогребневых блоков должна быть строго вертикальной
Первую линию рисуем на потолке, при помощи отвеса переносим ее на пол. Соединив точки на полу и потолке, получаем линии на стенах. В результате образовалась замкнутая разметка для выравнивания перегородки.
Осматриваем основание, на которое будем класть блоки. Оно должно быть выровнено идеально, если смотреть вдоль линии перегородки, и не должно заваливаться вперед или назад, если смотреть поперек.
Если в перегородке будут дверные или оконные проемы, их тоже необходимо обозначить. С дверными все просто — их обозначаем на полу. С оконными сложнее — необходимы маяки на стенах и потолке.
Подготовка основания
Как уже говорили, основание должно быть идеально ровным без крена в какую-либо сторону. Если отклонения есть, на бетонном полу заливаем выравнивающую стяжку (марка бетона не ниже М150). Для этого придется собрать опалубку, в которую заливают раствор. Минимальная толщина слоя — 3 см. Чтобы получить гарантированный качественный результат, используйте самонивелирующийся состав. Только учтите, что «сами выравниваются» не слишком большие погрешности. Распределять состав все равно надо вручную. Просто проведите шпателем, разгоняя раствор по всей длине, а мелкие неровности нивелируются за счет повышенной текучести материала.

Бетон залили в опалубку и накрыли полиэтиленом
Залитый бетон укрываем полиэтиленом, оставляем примерно на неделю. Это если температура в помещении не будет опускаться ниже +20°, за это время он наберет 50% прочности. Это значит, что с ним можно работать. Если температура будет ниже, срок увеличивается. При температуре 17°C и чуть ниже, нужны уже 2 недели… Ровное основание промазываем бетоноконтактом — он улучшит сцепление основания с клеевым составом, на который будем класть ПГП.
Если пазогребневые блоки будем класть на деревянный пол, перегородка должна проходить над балкой — это раз. Второе — выравниваем основание при помощи сухого бруса. Его надо закрепить так, чтобы он тоже был выровнен по горизонтали во всех направлениях. Крепим брус к полу гвоздями или саморезами. Если есть стык, его соединяем в полдерева, дополнительно промазывая соединение столярным клеем и скрепляя гвоздями.
Для улучшения звукоизоляции
Основной недостаток перегородок из гипсового пазогребня — не слишком высокая звукоизоляция. У силикатных блоков ситуация получше, но тоже не идеальна. Поэтому рекомендуем по периметру перегородки уложить виброгасящую ленту. Ведь не секрет, что большая часть звуков передается посредством вибраций через пол, потолок и примыкающие стены и эластичные прокладки значительно улучшают ситуацию.

Пробковая лента для улучшения звукоизоляции при монтаже пазогребневых перегородок
Под пазогребневые плиты можно использовать полосу битумизированного войлока или пробки плотностью 250-300 кг/м³. Ширина полосы — чуть меньше ширины блоков. Ее укладывают на выровненное основание на то же связующее, которое будете использовать для заделывания швов между плитами. Раствор наносят на обработанную бетоноконтактом поверхность (после высыхания) слоем в 2-3 мм. Укладывают ленту, прокатывая ее валиком, выгоняя пузыри воздуха. Выступивший раствор удаляют шпателем. Таким образом ленту клеят на пол, стены, потолок. Горизонтальность проверяют при помощи пузырькового уровня.
Подготовка плит к монтажу
Если используются силикатные пазогребневые плиты, никакой подготовки не потребуется — у них верхняя и нижняя поверхности не имеют паза/гребня. Они абсолютно ровные (как на фото ниже).

Силикатные пазогребневые плиты имеют ровный верх и низ
При работе с гипсовым пазогребнем, для начала надо решить, шипом или пазом вверх вы будете располагать блоки. Удобнее работать когда вверх направлен паз, но и обратное положение не является ошибкой.
Если вы решили класть ПГП вверх пазом, на всех блоках первого ряда надо обрезать шип. Удобнее всего это сделать при помощи ножовки. Полученный срез при этом неровный. Его выравниваем при помощи рубанка.
Обратите внимание! Срез плиты должен быть абсолютно ровным. От этого зависит насколько прочно будет стоять стенка из пазогребневых плит. А еще обрезанные пазогребневые плиты должны быть одной высоты.
Шов между блоками не превышает 2 мм, так что даже небольшие отклонения скорректировать практически невозможно. Поэтому выравниваем аккуратно и тщательно. После выравнивания, пыль обметают щеткой и можно начинать возводить стену.
Первый ряд
Последовательность действий при кладке стены из пазогребневых плит простая и очень напоминает кирпичную. Есть только некоторые особенности. Так как перегородка обычно примыкает к стене, если к ней получается развернут шип, его срезают пилой, выравнивают поверхность рубанком, убирают пыль. Дальше порядок действий такой:
- На стену и основание (или уложенную виброгасящую ленту) наносится слой раствора длиной чуть больше длины/высоты блока. Класть большой слой не стоит — он все равно выдавится.
- Плиту устанавливают, выравнивают, при помощи резиновой киянки осаживают и придвигают вплотную к стене. Еще раз контролируют вертикальность/горизонтальность. Выдавленный раствор подбирают шпателем.

Сделать отвод простенка с перевязкой рядов
- На торец установленной плиты наносится раствор, укладывается он и на основание — чуть больше длины плиты.
- Ставят следующий блок. Киянкой «подбивают» его к уже установленному, добиваясь плотного контакта. Контролируя положение при помощи уровня, осаживают, добиваясь одной высоты с уже установленным блоком. Правильность установки контролируется правилом или уровнем, ровной планкой. Инструмент ровной стороной прикладывают к уже установленным блокам — не должно быть зазоров по всей длине.
Таким образом выстраивают весь ряд. Последнюю плиту обычно приходится подрезать. Это может быть начало дверного проема или просто последняя плита в ряду. Ее длина должна быть на 3-4 мм меньше оставшегося промежутка — зазор на шов. Увеличивать зазор не следует — снизится устойчивость. Для большей уверенности, стык можно усилить металлическим уголком. По два-три уголка на каждый ряд. Этого достаточно.
Второй и последующие
Пазогребневые плиты укладывают с разбежкой швов — как кирпичи. Сдвиг второго ряда может быть наполовину или треть длины. Лучший вариант — половина. От целой плиты отрезаем половину, при необходимости срезаем шип, устанавливаем. Дальше кладка ничем не отличается. Третий ряд снова начинается с целого блока, четвертый — с половинки и т.д.
После укладки каждого блока проверяйте правильно ли он стоит. При таких размерах блоков погрешность накапливается очень быстро. Поэтому каждый поставленный блок проверяем сначала уровнем на вертикальность/горизонтальность. а потом, приложив планку горизонтально, захватив соседние блоки и проведя сверху вниз смотрим, чтобы не было зазоров. Так же проверяем отсутствие отклонений в вертикальной плоскости.

Контроль вертикальности и горизонтальности — одна из основных задач
Угол
Если возводимая стенка из пазогребневых блоков имеет наружный угол, кладку начинаем от него. Чтобы работать было проще, создаем опору угла. Это может быть уголок с довольно широкими полочками или две доски, соединенные под 90°C. Конструкцию ставим на место, проверяем правильность установки, закрепляем временно к потолку и полу.

Как сделать наружный (выступающий угол)
У одной из плит обрезаем боковой шип, упираем ее край в установленный упор, выравниваем, киянкой задавая направление. У второй плиты тоже обрезаем боковой шип, наносим на этот край клей, стыкуем с боковой поверхностью установленной плиты, подбиваем до плотного контакта (схема на рисунке выше).
Для установки второго ряда надо в установленной уже плите сделать пропил под нижний шип следующего блока. Берем ножовку по металлу, делаем надпилы. Затем при помощи штробореза (инструмент для работы с пенобетоном, но он пригодится и для прокладки проводки в ПГП) или любого твердого инструмента удаляем лишнее, выравниваем канавку, делая ее такого же размера и формы как паз. При помощи щетки или строительного пылесоса убираем пыль.

Надо сделать пазы
Второй ряд ставим начиная с другой стороны — чтобы шов был с другой стороны угла. На торец нижнего блока наносим раствор. Берем половинку блока, обрезаем боковой шип, устанавливаем нижним в подготовленную канавку (крайняя правая схема на рисунке ниже). Он тоже должен упираться в установленный уголок. Тщательно выравниваем установленные пазогребневые плиты, проверяя вертикальность и отсутствие даже малейших отклонений.
Ответвление
Надо еще рассмотреть ответвление от перегородки под прямым углом. Перегородки будут более надежными, если сделать их с перевязкой (средняя схема на рисунке). У всех трех плит, которые устанавливаются, срезают боковой шип. Места стыка промазывают клеевым составом, подгоняют три блока вплотную друг к другу киянкой. В этом случае необходимо еще контролировать, чтобы перегородка была перпендикулярной — то есть угол был 90°.

Схемы примыканий
Второй ряд выстраиваем так, чтобы над примыканием находилась середина блока. Для его установки, тоже потребуется проделать канавку в выступах нижнего блока. Далее эти ряды чередуются.
Есть еще один способ поставить Т-образную перегородку из пазогребня — без перевязки. Для этого просто выкладываете стену (которая в букве Т — верхняя перекладинка). К готовой стене, встык, пристраиваете вторую перегородку (левая схема на рисунке выше). Чтобы увеличить надежность соединения, в месте стыка устанавливают металлические усиленные перфорированные уголки.
Дверной проем
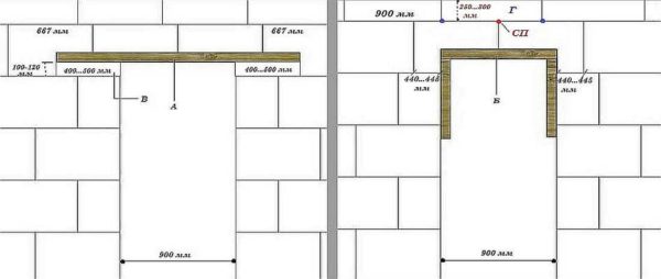
Дверной проем в стене из пазогребневых плит может быть сделан с усиливающей балкой и без нее. Без усиливающей балки можно выполнить, если ширина проема не превышает половины длины блока. Так дверной проем шириной 900 мм можно сделать без балки, если перекрытие будет сделано из ПГП длиной 900 мм. Причем стык плит должен располагаться почти посередине. Допускается небольшое смещение (на 10 мм), но чтобы длина целой части блока справа и слева от проема не была менее 445 мм.
На время монтажа, до схватывания клея, перемычку над дверью усиливают упором (доска, которую подпирает шест, упершийся в пол) или собранной из досок конструкцией как на правой схеме. В этом случае сначала собирают П-образную перемычку из досок, закрепляют ее при помощи саморезов к расположенным ниже блокам (контролируйте горизонтальность перемычки). Прикладывают блок, размечают как надо вырезать. Получается два Г-образных блока одинаковых или почти одинаковых размеров. Нанеся в нужных местах раствор, их устанавливают.

Строим из пазогребневых плит: как сделать дверь в перегородке
Если пазогребневые плиты используем 667 мм длиной, под проем более 660 мм обязательна установка укрепляющей балки. Для изготовления балки можно использовать металлический уголок, швеллер, арматура, полосы металла значительной толщины. Возможно применение сухого деревянного бруса толщиной 50 мм и более (предварительно обработать антисептиком). Балка должна на 400-450 мм выступать за пределы дверного проема.