Как сделать чудо-лопату (рыхлитель)

В саду и на огороде очень много работы, но самая изнурительная — перекопка земли, ее культивация и удаление сорняков. Копать начинают загодя, небольшими участками, так как нагрузка слишком большая. В разы снизить сложность и при этом ускорить процесс минимум в два раза поможет чудо лопата. Это относительно недорогое и несложное приспособление действительно работает, причем даже на сложных почвах. 

Чем отличается и что может

Содержание статьи

  • 1 Чем отличается и что может
    • 1.1 Как работать
  • 2 Конструкции
    • 2.1 Рыхлитель почвы без переднего упора
    • 2.2 Копалка
    • 2.3 Легкокоп
  • 3 Из чего и как делать
    • 3.1 Материалы для изготовления
    • 3.2 Размеры
    • 3.3 Чертежи

Если быть точным, то это не лопата, а рыхлитель, так как она не просто копает, но еще и разбивает комья. Чудо лопата состоит из двух (иногда одной) планок со штырями, подвижно соединенными. В некоторых моделях также присутствует задний упор — для более легкой копки плотной тяжелой земли. Так что в действительности она больше похожа на двойные вилы (смотрите фото внизу).

Чудо лопата и ее составные части

Из рисунка понятно, что у этого инструмента нет лопаты как таковой, но на этом отличия от классической штыковой лопаты не заканчиваются. У нее еще и ручка значительно выше — она должна вам доставать до плеча. Еще удобно, если на ее верхушке есть поперечная перекладина — можно действовать двумя руками.

Чудо лопата выполняет сразу три операции:

  • рыхлит почву;
  • разбивает комья;
  • «добывает» корни сорняков, не разрывая и не разрезая их (во всяком случае намного меньше их повреждая);
  • легко копает корнеплоды — можно копать морковь, картофель и т.п.

Но основное ее достоинство — она значительно облегчает копку земли, причем основная нагрузка приходится не на спину, как при использовании обычной штыковой лопаты, а на ноги (загонять рабочие вилы в грунт) и на руки (выворачивать вилы из земли). Спина во время работы находится в вертикальном положении и почти не нагружена.

Еще один вариант чудо-лопаты

 

Единственны минус этого инструмента — это вес. Он действительно гораздо больше, чем у штыковой. Но супер лопата переставляется, ее не надо поднимать. Вернее, ее поднимают только несколько раз: когда устанавливают на грунт в начале ряда. Потом, потянув за ручку, ее просто немного перетягивают.

Есть еще один очень привлекательный момент в использовании чудо-лопаты — копается огород как минимум, в два раза быстрее. Это происходит за счет более широкой рабочей части — до 50-60 см. При условии малой физической нагрузки это очень хорошо.

Как работать

Хоть и не особо сложная это конструкция, но работа с ней имеет свои особенности. Во-первых начинать надо с дальнего края грядки, двигаться потом назад, понемногу перетаскивая назад вилы. Ну а общий порядок действий такой:

  • Взявшись за черенок, поставить чудо лопату, опереть ее на передний рыхлитель.
  • Воткнуть вилы в землю. Вогнать их так, чтобы задний упор коснулся земли. Если земля тяжелая, плотная, может понадобиться дополнительное усилие — надавите ногой на перекладину передних вил.
  • Потянуть черенок «на себя».  При этом движении вилы начнут двигаться вверх. Поднимаясь они проходят через вилы переднего упора, разбивая комки.
  • Перетянуть устройство чуть назад, повторить все действия (воткнуть, дожать, потянуть черенок).

В действительности все очень просто. Стоит попробовать пару раз а дальше все повторяется «на автомате».

Конструкции

Кроме того варианта, что показан выше (под названием «Торнадо», «Землекоп» или «Пахарь»), есть еще несколько вариантов конструкций чудо-лопаты под разными названиями.

Сборочный чертеж чудо-лопаты

Рыхлитель почвы без переднего упора

Эта конструкция также имеет рабочие и опорные вилы, но не имеет переднего упора. Потому она менее громоздкая, чуть меньше весит. Но передний упор дает повышенную устойчивость при работе. А вес при перетаскивании не так уж важен.

Ручка приделана к рабочим вилам, задний упор приварен к гребенке вторых вил. Обе эти конструкции подвижно соединены между собой (можно использовать даже дверные петли).

Рыхлитель чудо лопата для легкой обработки земли

На фото одна из реализаций, которая сделана на основе уголка и круглой трубы. При работе загоняют штыри в землю нажав на перекладину, а не на упор, как в большинстве моделей.

Копалка

Вариант под названием «Копалка» — это по сути широкие вилы с упором для более легкого выворачивания и высокой мощной ручкой.

Чудо лопата «Копалка»

Особенность этой конструкции в упоре и регулируемой ручке. Она фиксируется двумя болтами, подбирается под рост работающего человека.

Упор не стационарный, а подвижный. Он закреплен на раме. При погружении штырей в грунт на него надавливают ногой, потом не снимая ногу, выворачивают нажимая на ручку вилы из земли.

Копалка в действии

Физическая нагрузка при работе невысокая, работа продвигается быстро. Но эта чудо-лопата не пойдет для жестких и комковатых почв: она не дробит почву. Она под собственным весом проминается через вилы. Но подобное возможно только на рыхлых грунтах. На глине или черноземе лучше иметь вторую гребенку со штырями.

Как сделать чудо-копалку смотрите в следующем видео.

Легкокоп

Эта конструкция чудо-лопаты немного отличается от предыдущей. Упоры в ней округлые, ручка дугообразная, но основа конструкции такая же. Некоторый недостаток — нет возможности регулировать ручку, а в остальном все также — подвижный упор и рабочие вилы.

Два варианта под названием «Легкокоп». Наиболее простой рыхлитель для огорода, сада и дачи

Лучше эта вариация или хуже сказать сложно. Можно было бы оценить только сравнив работу обоих экземпляров на одном участке.

Если вы посмотрите следующее видео, увидите, что копать подобной чудо-лопатой можно не только рыхлые почвы, но и тяжелые. И второе, на что можно обратить внимание — все-таки для такого грунта лучше иметь вторую гребенку штырей, об которую можно раздробить вывернутые комья.

Из чего и как делать

Конструкции, как вы видели, разные, но набор материалов будет примерно одинаковым. Отличается их количество, а сечение и характеристики остаются неизменными.

Использовать можно круглую или профилированную трубу, металлические прутки или «детали» от вил

Материалы для изготовления

Начинают в основном с изготовления каркаса. Его чаще делают из профилированной трубы, оптимальное сечение 30*30 мм или около того. Важна при этом толщина стенки  — не менее 3 мм. В некоторых моделях использовали уголок. Ширина полочки тоже около 30 мм, толщина металла — не менее 3 мм.

Ручку можно сделать из той же профильной трубы, можно использовать круглую. Важна также толщина стенок. В принципе, сделав фиксатор, можно использовать деревянный держак от лопаты. Некоторые покупные модели предусматривают установку именно деревянного держателя.

Рама из уголка

Основное внимание надо уделить материалу, который используют для зубьев рабочих вил. Это должна быть хорошая конструкционная сталь. Вилы делают из прутка не менее 8 мм в диаметре.

Из чего делают их умельцы:

  • Отрезают от обычных вил, приваривают на чудо-лопату.
  • Распрямляют пружины подвески.
  • Распиливают на узкие полоски автомобильные рессоры.

Если удастся найти хороший пруток — круглый, квадратный или шестигранный — не важно, вам будет намного проще. Неплохой вариант, кстати, с вилами. Но брать надо хорошие, а это недешево. И еще: рассчитывайте размеры чудо-лопаты так, чтобы рабочие вилы имели 8 штырей. Тогда нужно будет купить две шутки обычных вил.

Если конструкцию выбрали с двумя вилами — рабочими и упорными, на упорные можно ставить отрезки подходящей длинны металлического прутка. Нагрузки тут не такие высокие, так что прочности должно хватить. Диаметр прутка — 10 мм, можно использовать ребристую арматуру, которую применяют при армировании фундамента.

Размеры

Большинство фирм, которые выпускают чудо-лопаты имеют целый ряд размеров данного изделия. Люди у нас разные по комплекции и по физической подготовке. Для мужчин можно делать более массивные модели, а для женщин и пожилых людей — меньше и легче. В среднем размеры такие:

  • Ширина рабочей части — от 45 см до 60 см. Больше делать не стоит: будет тяжело копать и производительность только уменьшится, а не возрастет.
  • Длинна штырей рабочих вил 220-300 мм.
  • Расстояние между штырями — 70-80 мм.
  • Длина ручки — по росту, удобнее, если она заканчивается в районе плеча.

    Размеры чудо-лопаты можно подбирать «под себя» — важно чтобы работать было удобно

Все остальные размеры подбираете в зависимости от конструкции и используемого материала.

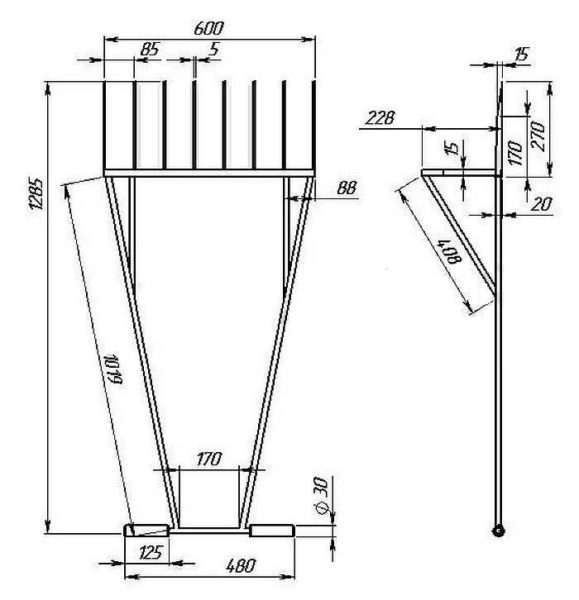
Чертежи

Рабочие вилы чудо-лопаты

Детализация упора и вил упора

Полная конструкция с передним упором

Вариант с одними вилами и рамой-упором сзади

Другие размеры копалки и отличается конструкция упора

Легкокоп с цельногнутой ручкой

 

Рейтинг
( Пока оценок нет )
Expert/ автор статьи
Загрузка ...