Как сделать сдвижные (откатные) ворота: делаем консольные — фотоотчет, видео

Всем хороши распашные ворота: просты и дешевы. Но зимой, при большом количестве снега, открыть их можно только основательно поработав лопатой. Когда нужно на работу это совсем не радует. Этого недостатка лишены откатные или, как говорят, сдвижные/раздвижные ворота. Цельная конструкция, закрывающая весь въезд, отъезжает в сторону, прячась за забором. Держаться они могут на обычной или консольной балке, а могут просто ездить по рельсам. В любом случае, откатные ворота своими руками сделать можно. Это не совсем легко, но возможно. 

Конструкции

Содержание статьи

  • 1 Конструкции
  • 2 Какие лучше
  • 3 Как сделать консольные откатные ворота
    • 3.1 Как рассчитать фундамент под крепление для консольной балки
    • 3.2 Установка роликовых опор
  • 4 Откатные ворота своими руками: фотоотчет с пояснениями
  • 5 Видео

По типу откатные (сдвижные, раздвижные) ворота бывают:

  • Консольными — с балкой, один конец которой закреплен, второй висит в воздухе. Балка имеет П-образный профиль со ступеньками внутри. По ней внутри перемещаются ролики. Вся нагрузка от дверного полотна через ролики передается на балку.

    Консольные ворота с нижней балкой

    По месту ее расположения они бывают:

    • с нижней балкой;
    • средней балкой;
    • верхней балкой.
  • Подвесные. В этой конструкции тоже есть балка, но она опирается на оба столба по сторонам от ворот. Она тоже имеет особое строение, похожее на букву «П» только с загнутыми внутрь краями. Внутри также имеются ролики, на них висит полотно ворот. Так полотно и перемещается.

    Подвесная конструкция

  • Откатные по рельсу. В грунте монтируется рельс, на нижнюю часть створки ворот прикрепляются ролики. Полотно катается по направляющей. Конструкция самая простая, но ее минус в том, что рельс и сами ролики забиваются снегом, грязью, листьями.

    Откатные ворота на рельсе

Какие лучше

Какая конструкция лучше — сказать трудно. Если говорить о надежности, то самый лучший выбор — подвесная конструкция. Все легко и надежно, практически неубиваемая система. Ворота такого типа эксплуатируются на предприятиях десятки лет. Их недостаток — балка ограничивает высоту въезжающего транспорта, что иногда важно. Но сегодня есть модели с составными балками, позволяющие при открытых воротах снять перемычку над въездом, а потом вернуть ее на место.

Самая дешевая и простая в исполнении — система на рельсе. Эти откатные ворота своими руками собрать проще всего. Но возникающие при эксплуатации проблемы делают ее непопулярной.

Из всех приведенных конструкций самая дорогая и сложная в исполнении — консольная, тем не менее именно она ставится чаще всего: правильно сделанная она не доставляет неудобств при эксплуатации. При выборе нужно иметь в виду, что при ее устройстве справа или слева от ворот требуется расстояние, в полтора раза больше, чем ширина полотна: кроме самой створки есть еще техническая часть, которая выступает сбоку примерно на половину длины.

Подробно типы откатных ворот, особенности конструкции и построения рассмотрены в видео.

Как сделать консольные откатные ворота

Эта конструкция хороша тем, что над проездом нет балок. Но она — самая дорогая в устройстве. Дело не столько в системе роликов, сколько в необходимости устройства фундамента с металлическими закладными, к которым затем будет крепиться консольная балка. Если столбы уже есть, фундамент заливается перед ним и вдоль забора на длину технического выноса, который необходим для компенсации нагрузки, создаваемой полотном.

Комплектация консольных ворот

Даже если делают консольные откатные ворота своими руками, комплект, состоящий из направляющей балки, роликов, концевых роликов и уловителей покупают обычно в фирме. Все запчасти рассчитываются исходя из размеров полотна, материала каркаса и типа обшивки: вес имеет существенное значение. Потому желательно со всеми этими параметрами определиться заранее.

Зная длину несущей балки, вы сможете рассчитать необходимый размер фундамента. По типу — это ленточный фундамент, котлован под него копают ниже глубины промерзания грунта (для каждого региона она своя), в который закладывают армированные опоры под пластины с роликами, а также устанавливают стойки. К этим стойкам затем крепится комплект верхних роликов, удерживающих полотно и не дающих ему раскачиваться.

Как рассчитать фундамент под крепление для консольной балки

Сложного при расчете ничего нет. Фундамент по длине равен почти половине длины пролета. Если пролет 4 метра (ширина проезда или расстоянием между столбами), то фундамент должен быть 1,8-2 м. Ширина его 40-50 см, глубина — ниже глубины промерзания грунта для региона.

Фундамент под консольную балку при строительстве откатных ворот

Котлован выкапывают еще на 10-15 см глубже — под гравийно-песчаную подушку. Этот фундамент армируют (по типу ленточного), в верхней его части к арматуре приваривается швеллер  (18 или 20) и все это заливают бетоном. Швеллер выставляется в «нулевой» уровень, то есть он должен стоять на одном уровне с уровнем грунта или материалом, которым отделан двор.

Подготовленное армирование и закладной швеллер

Есть более дешевый и быстрый вариант, но по надежности он уступает описанному выше. В грунт вкручивают три винтовых металлических сваи, к ним приваривают швеллер.

Установка роликовых опор

К закладному швеллеру привариваются шпильки, к ним потом на болтовых соединениях крепятся платформы с роликами. Иногда можно встретить варианты, когда платформы приварены сразу к закладной. Это неправильно. Существует довольно большая вероятность того, что фундамент или столб забора даст усадку. Даже небольшое смещение  — и ваши ворота работать не будут. Если ролики со шпилек можно снять, шпильки переварить и все собрать на место, то как корректировать если платформа приварена? Срезать? Сложно, долго, без гарантий. Так что лучше в этом случае делать все по правилам.

Пример крепления роликовых площадок

При покупке обратите внимание на роликовые каретки и на сами ролики. Это обязательно закрытые подшипники качения. Они обычно располагаются в два ряда по 4 штуки в каждом. Смазка в них должна быть морозостойкой — нижний предел температур -60°C. Осмотрите платформу, на которой они крепятся. Она должна быть стальной, литой, хорошего металла с оцинкованной поверхностью, покрыта защитной смазкой.

На ролики накатывается опорная балка, потому основную нагрузку несут они

Покатайте ролики. Все должны кататься без усилий, и не должны иметь люфта (не должны шататься из стороны в сторону). Тогда можно быть уверенным, что ворота будут ездить легко и откатной механизм будет работать продолжительное время (некоторые фирмы дают гарантию 10 лет). Ведь большая часть нагрузки приходится именно на ролики, потому их качество  ключевой момент, как и сбалансированная конструкция полотна.

Остальные этапы монтажа более понятно будут описаны в фото-отчете: ворота собраны самостоятельно, без привлечения специалистов.

Про автоматику распашных ворот читайте тут.

Откатные ворота своими руками: фотоотчет с пояснениями

Эти ворота сделаны на основе готового комплекта, раму делали сами, также самостоятельно монтировали

Ворота ставились в Москве, соответственно цены — столичные. Ставили их в 2010 году, с тех пор комплекты сильно подешевели. Например, «свежая»  цена привода для полотна весом не более 400 кг (есть до 1,2 т) — около 100$, но это — бюджетный вариант. Во времена строительства приобретены комплектующие фирмы Rolling Center (лучшие тогда на рынке) с ведущей балкой длиной 6 метров. Были также заказаны отдельно верхний ловитель и кронштейн. Все с доставкой обошлось около 600$.

Также были куплены следующие материалы:

  • профильная труба 80*60 мм — 6 м, 60*40 мм — 18 м, 40*20 мм — 36 м;
  • швеллер — 180 мм — 3 метра, 200 мм — 2,4 метра;
  • арматура 12 мм — 6 м;
  • электроды — 2 кг;
  • краска —  3 банки, кисти, заклепки;
  • цемент М-400 — 5 мешков;
  • профнастил покупался при изготовления забора.

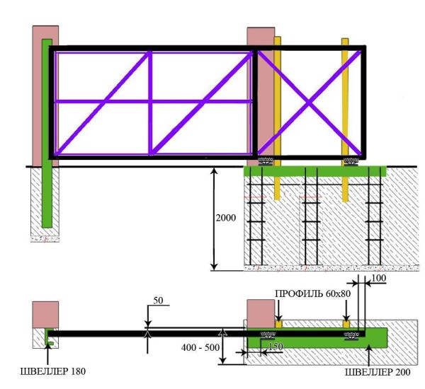
Схема откатных ворот с размерами

Первым делом сварили каркас для ворот с противовесом. Раму (черным цветом) делали из профильной трубы 60*40 мм, перемычки и внутренний каркас (сиреневый) из трубы 40*20 мм. Внизу приварена направляющая балка разрезом вниз.

Как варилалсь рама

Внутренний каркас варили с отступом от края — по 20 мм с каждой стороны. Так удобнее потом крепить профлист, при желании можно и изнутри обшить.

Как приваривать профильную трубу 40*20 мм

Сначала залили фундамент. В него установили арматуру, сверху швеллер спинкой вверх. Вплотную к швеллеру две стойки из профилированной трубы 80*60 мм. Одна стойка примыкает к столбу, вторая выставлена вертикально на расстоянии 120 см. На них потом навешиваются ролики, которые придерживают полотно сверху. С другой стороны, вдоль ответного столба установили швеллер 180 мм.

Швеллер на 180 мм прикрепили к ответному столбу

Примерка на месте

На ответной части к швеллеру вверху и внизу закреплены уловители, которые не дадут воротам болтаться при ветре.

Установленные на приемном столбе упоры

Верхний и нижний уловители

Следующий шаг — установка пластин с роликами. Они крепятся к закладным. В данном случае это швеллер, потому пространство получилось большое. Когда делали фундамент, его сделали слишком высоким, потому пластины приваривались непосредственно к закладной. Это непрактично: если поломается ролик, поменять его будет проблематично. Обычно приваривают площадку, к которой потом на болтах крепят площадку с роликами.

Приварены роликовые площадки и на них «наехали» роликами

Готовый каркас ворот просто накатывают на закрепленные ролики.

Фото створки на роликах с разных ракурсов

После установки на опорную балку с обоих концов надевают заглушки. С дальней стороны устанавливается еще упорное колесо, которое в закрытом положении заезжает в нижний уловитель, приподнимая ворота и снимая нагрузку с роликов.

Установка заглушки и упорного ролика (балка на фото перевернута)

Теперь, чтобы ворота не «гуляли» в верхней части (они сейчас ничем не закреплены), к стойкам (80*60 мм) крепят комплекты верхних роликов — по одному на стойку. Их практически надевают на раму. Теперь имеющиеся внутри ролики будут придерживать ее вверху.

Верхние ролики крепят на стойки, захватывая верхнюю кромку ворот

Так выглядят установленные верхние ролики

Все, откатные ворота своими руками собраны и готовы к эксплуатации.

Как выглядят откатные ворота со двора

Если остались вопросы, посмотрите видео. В нем собирают готовый комплект, весь процесс станет понятнее.

Видео

Несколько видео с разными конструкциями откатных ворот. Первое — консольные на средней балке. Проблем со снегом не будет, но внешний вид со двора — ниже среднего.

Эконом-вариант: откатные ворота для дачи. Конструкция проста до чрезвычайности.

Еще одни самодельный вариант. Тут в трубе 60*60 мм, пропилен просвет, в который вставляются ролики. Конструкция взята стандартная, собрана из разных комплектующих.

Рейтинг
( Пока оценок нет )
Expert/ автор статьи
Загрузка ...