Привлекательный потолок — одно из условий хорошего внешнего вида помещения. Потому при ремонте этому вопросу уделяется много внимания. Но сделать потолок привлекательным сложенее, чем стены — более сложные условия работы. Если вам надо быстро, недорого привести эту часть помещения в порядок — ваш выбор потолок Армстронг. Это быстро монтируемая подвесная система, которая дает море возможностей.
Устройство системы
Содержание статьи
- 1 Устройство системы
- 2 Достоинства и недостатки
- 3 Элементы системы
- 3.1 Профили
- 3.2 Плиты
- 3.3 Подвесы и чем их можно заменить
- 3.4 Светильники и вентиляционные решетки
- 4 Монтаж потолка Армстронг
- 5 Фото потолков Армтсронг в интрьере
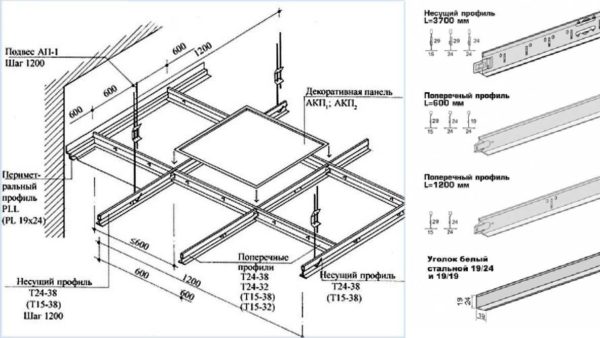
Подвесной потолок Армстронг состоит из системы профилей, при помощи подвесов прикрепленных к черновому потолку. Эти профили образуют квадратные или прямоугольные ячейки, в которые устанавливаются светильники и плиты. Все это вместе и является потолочной системой армстронг.

Потолок Армстронг — один из вариантов
Профили есть несущие (направляющие). Именно они через подвесы крепятся к черновому потолку и несут основную нагрузку. Общая масса всей системы невелика, потому устанавливаются направляющие через 120 см. Вдоль размеченных линий с шагом 50 см монтируют подвесы. В их нижней части есть крючки, а в направляющих имеются отверстия. Направляющие просто навешиваются на крючки. После этого получили параллельные направляющие, расставленные с шагом 120 см.

Устройство потолка армстронг
Между ними с таким же шагом — 120 см — устанавливается поперечный профиль. В результате получаем клетку 120 см * 120 см. Плиты подвесного потолка Армстронг имеют размер 60*60 см (если быть точными, то 598 мм * 598 мм). Для их установки еще крепят профили каркаса — чтобы получилась клетка с нужными размерами. После этого остается только смонтировать светильники и установить в ячейки плиты.
Достоинства и недостатки
Первоначально разрабатывались потолки Армстронг для использования в производственных, служебных и общественных помещениях. Но целый ряд отличных качеств привели к тому, что их используют еще и в частных домах и квартирах. Вот перечень свойств подвесных потолков типа Армстронг:
- Невысокая цена. Это самый дешевый способ устроить подвесные потолки.
- Большое количество вариантов плит и профилей. Плиты могут быть не только белые матовые. Они есть металлические, окрашенные в разные цвета с разной степенью глянца. Есть стеклянные, зеркальные, оклеенные пленкой «под дерево» и т.п. Причем эти плиты легко сделать самостоятельно, получив уникальный дизайн.
- Легкий монтаж. Все операции во время монтажа элементарны, времени требуется минимум.

Такой вариант подойдет для дома
- Высокая ремонтопригодность. При порче плиты ее просто вынимают и ставят новую. Потому, при закупке составляющих, берите плиты с запасом.
- Подвесной потолок отлично скрывают все коммуникации и позволяют организовать отличную вентиляцию — плиты очень часто имеют перфорацию. Даже если она монолитна, то просто лежит на каркасе, никакой герметичности нет и вентиляция запотолочного пространства хорошая.
- Система получается легкой — профили сделаны из алюминиевого сплава, плиты — из прессованных бумажных отходов разной толщины или легкого сплава.
Потолок Армстронг — действительно замечательный продукт. Видимо потому он так полюбился владельцам офисов, торговых центров, кинотеатров и т.д. Но есть и минусы. Первый — внешний вид такого потолка идеально подходит для офиса или общественного помещения, а вот в частных помещениях не все их воспринимают. Но это — дело вкуса. Второй — система подвесная и «съедает» высоту потолков, с которой у многих и так проблемы. Но если потолки более-менее нормальные, эту систему можно ставить. Вот и все минусы.
Элементы системы
Потолочная система Армстронг состоит из набора элементов, которые легко между собой соединяются. Одно из ее достоинств — модульность, которая позволяет получить потолок любого размера и конфигурации. Проблема только с нелинейными формами — они не предусмотрены и штатных решений нет. Потому этот вид подвесного потолка используется только в квадратных и прямоугольных помещениях.

Это вариант потолка Армстронг со смешанным заполнением
Профили
Профили для потолка армстронг деалют из легкого алюминиевого сплава. На верхней части профилей нанесена перфорация, при помощи которой они крепятся к подвесам и стыкуются между собой. Нижняя часть профилей — та, которая видна из помещения — может иметь серебристый цвет, но чаще — белый. Также есть черные и золотистые, можно найти другие цвета, но их уже надо искать.

Чаще всего профиля окрашены в белый цвет
Длина профилей 600 мм, 1200 мм, 3600 мм. Несущие профили должны быть цельными (в случае необхоидимости могут сращиваться), потому длину подбираем такую, чтобы профиль был не короче помещения. Его нарезают на участки нужной длины.
Поперечные профили набираете частично длиной 120 см, частично — 60 см. Придется считать, сколько нужно каких для создания подвесной системы в вашем случае. Резать их не получится — по краям сделаны выступы, при помощи которых они стыкуются с несущими.

Монтажная схема потолка армстронг и ее компоненты
Несущие и поперечные профили бывают двух размеров — под разные типы плит: с полочкой на 15 мм и 24 мм. Разной бывает и «спинка» — под разную толщину плит (19 мм, 24 мм и 29 мм).
Есть еще пристенные профили. Они выполнены в виде уголка, монтируются по периметру помещения. На них опираются крайние плиты. Они тоже есть с полочками разной величины — 19 мм и 24 мм.
Плиты
Плиты для подвесных потолков Армстронг бывают двух размеров — 120 см * 60 см и 60 см * 60 см. Второй вариант более распространен, возможно потому, что квадраты лучше воспринимаются, чем прямоугольники. Есть еще они разной толщины — от 6 мм до 19 мм. Чем больше толщина, тем большую степень звукоизоляции имеет такой потолок, но во многом эта характеристика зависит от материала, из которого изготовлены плиты. А бывают они нескольких видов:
- Класс Эконом. Наиболее дешевые из всех, они имеют высокую гигроскопичность и плохо переносят повышенную влажность. Влагу они впитывают в лбом виде — в виде жидкости при подтоплении соседями сверху или из воздуха. Напитавшись влагой, становятся тяжелыми, начинают менять форму — прогибаться, что портит внешний вид. В общем, вариант дешевый, но хорошо себя чувствует в помещениях с климатконтролем и постоянной влажностью. В эту группу входят Oasis (Оазис) и ,Oasis+, Cortega (Гортега), Tatra (Татра), Bajkal (Байкал).

Плиты для потолка Армстронг касса Эконом
- Класс Прима (Prima). Это более дорогие панели, но они и по характеристикам намного лучше. Во-первых, они более прочные, имеют повышенную стойкость к влаге (85% против 65% у класса Эконом). Лучше они и в плане звукоизоляции и внешнего вида. К этой группе относятся коллекции Adria (Адриа), Casa (Каса), Cirrus (Циррус), Plain (Плэйн), Duna+ (Дюна плюс).

Плиты класса Прима
- Влагостойкие. Этот вид плит для подвесного потолка можно использовать во влажных помещениях или при повышенной влажности воздуха. Есть два вида Mylar (Мулар), Newtone Residence (Ньютон Резиденс).

Влагостойкие плиты для потолка Армстронг
- Акустические. Имеют улучшенные характеристики по звукопоглощению. Подходят для монтажа в торговых залах, офисах. Выпускаются в двух видах: Neeva (Ниива), Frequence (Фриквенс).
- Гигиенические. Эти плиты хорошо моются, предназначены для медучреждений и предприятий пищевой индустрии. Вид всего один — Bioguard (Биогуард).

Акустический и гигиенические — для специфического применения
- Дизайнерские. Эти плиты для потолков армстронг значительно отличаются по внешнему виду от всех остальных. Они используются при оформлении клубов, ресторанов, баров. Имеют презентабельный, а порой и роскошный вид, но стоят уже немало. Модификаций несколько: Visual (Вижуал), Cellio (Селлио), Graphis Linear (Графис Лайнер), Cirrus Image (Циррус Имидж).

Дизайнерские. Это только основные есть варианты
Выше речь шла о аутентичных плитах, которые производит фирма Armstrong. Есть другие типы и виды, производимые другими кампаниями. Название и внешний вид могут отличаться, но деление по категориям примерно такое же.

Некоторые виды из других материалов и в другом стиле
Например, есть металлические плиты — белые, из цельного листа и с перфорацией разного размера и формы, есть крашенные в разные цвета, есть из пластика — полупрозрачные и с нанесенной фотопечатью. В общем, в эту систему встраиваются различные плиты.

Типы профилей и плит
Еще один момент: плиты на потолок Армстронг по краям имеют выступ. Этот выступ бывает разной ширины и глубины. Под размеры этого выступа и подбирается тип профиля. Может быть и наоборот, но они должны стыковаться.
Подвесы и чем их можно заменить
Подвесы для потолков Armstrong имеют в верхней части отверстие для установки крепежа, в нижней — крючок, которым удерживается профиль. Верхняя часть крепится к потолку при помощи дюбелей или другого крепежа (в зависимости от материалов перекрытия).

Подвесы есть различных конструкций
Из всего этого разнообразия чаще всего используется вариант с двумя шпильками (на фото выше — третий справа и на фото внизу). Эти подвесы недорогие, быстро собираются, позволяют легко регулировать высоту потолка, когда возникает необходимость выставить его в одной плоскости.

Как использовать подвес при монтаже потолка Армстронг
Но эти подвесы имеют минимальную высоту 25 см. Это много даже в некоторых офисах, а уж в домах и квартирах и подавно. Выход — укоротить шпильки (как на верхнем фото справа) или использовать подручные материалы. Наиболее подходящие — стальные шпильки с кольцом на конце и кусок упругой сталистой проволоки. Минус этого крепления — сложно регулировать высоту подвеса. Придется изготавливать их точно той длины, которой они необходимы.

Чем можно заменить подвесы
Также подойдут дюбеля с крючками на концах. Но тут тоже понадобятся дополнительные крючки из проволоки, так как слишком маленькое расстояние до потолка не позволит уложить плиты — необходимо пространство для маневра. Минимальное расстояние между основным и подвесным потолком — 25 мм и то будет очень неудобно. Желательно иметь хотя-бы 50 мм. Но это только в том случае, если в потолок не устанавливаются светильники или вентиляторы.
Светильники и вентиляционные решетки
Штатные светильники и вентиляционные решетки неплохо подходят для офисов, торговых залов, общественных и медицинских учреждений. Они имеют тот же размер, что и плиты и просто устанавливаются в выбранное место. С подключением ламп проблем не бывает — обширное запотолочное пространство позволяет подвести провода нужного сечения без проблем. Их укладывают в металлические лотки, закрепленные на потолке или кабель каналы.

Пример использования светильников и вентиляционных решеток в офиссе
В квартирах и домах штатные светильники смотрятся, как минимум, странно, да и мощность имеют явно большую чем надо. В этом случае обычно используют встраиваемые точечные светильники. Лучше брать со светодиодами — они почти не греются и потребляют мало электроэнергии, а света дают достаточно.
Использование вентрешеток в домах и квартирах — случай, скорее, исключительный. Система сама по себе негерметична, многие плиты с перфорацией, что обеспечивает достаточную степень вентиляции запотолочного пространства. Если, все-таки необходимы дополнительные отверстия, можно или штатную решетку использовать или встроить меньшего размера, вырезав в плите подходящее отверстие.
Монтаж потолка Армстронг
Собрать потолок Армстронг просто: понадобится дрель, подходящий крепеж (дюбеля или саморезы, в зависимости от материала перекрытия), неплохо иметь лазерный уровень, но можно обойтись водяным и пузырьковым. Для нарезки профилей можно использовать ножницы по металлу, а можно — болгарку с режущим диском или ножовку с полотном по металлу.
Технология монтажа подвесного потолка Армстронг по шагам выглядит так:

Крепление пристенных профилей

Лучше нарисуйте план, а после приступайте к монтажу

Установка подвесов

Навешиваем несущие профиля и закрепляем их на крючках

Собираем решетку из профилей

Установка плит в систему подвесных потолков Армстронг
Вот вам пошаговая инструкция по монтажу Армстронга. Все действительно несложно. Надо только предварительно продумать план расположения плит и уяснить для себя, где, на каком расстоянии от стен будут проходить несущие профиля. Дальше все собирается как конструктор.
Фото потолков Армтсронг в интрьере

Это плиты из дизайнерской серии

Зеркальные поверхности на потолке в ванной

Молочное стекло с подсветкой за потолком дает мягкий рассеянный свет

Даже длинный коридор выглядит нескучным

Большие плиты из монолитного поликарбоната с нанесенной фотопечатью

Динамично, светло

Диагональное исполнение сложнее

Комбинация из серых металлических плит и обычных белых

Вариант для кафе, но такой же или похожий неплохо будет смотреться в современном интерьере

Это уже совсем сложный вариант — авторский